Back to properties

Former Bank Premises, 8 Snitterton Road, Matlock, Derbyshire DE4 3LZ

Former Bank Premises, 8 Snitterton Road, Matlock, Derbyshire DE4 3LZ

£600,000
Residential
About this Property
2025-01-30
600000
Traditional
Residential
Description

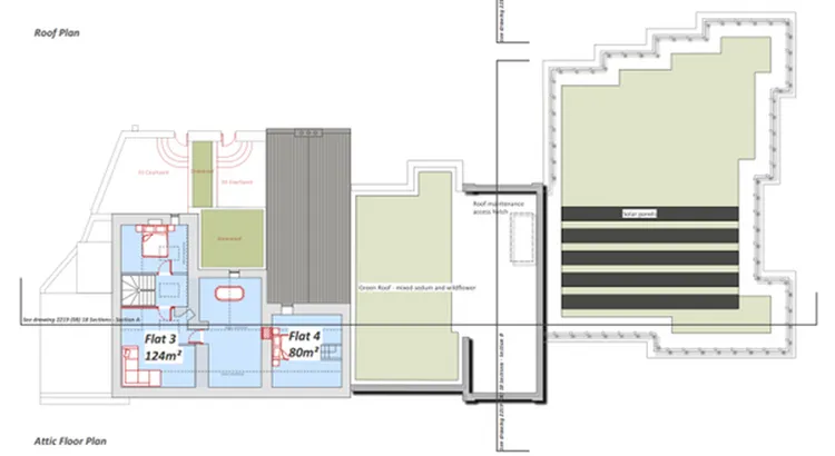
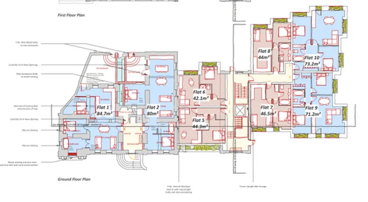
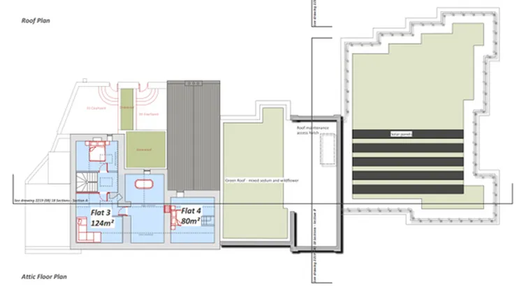
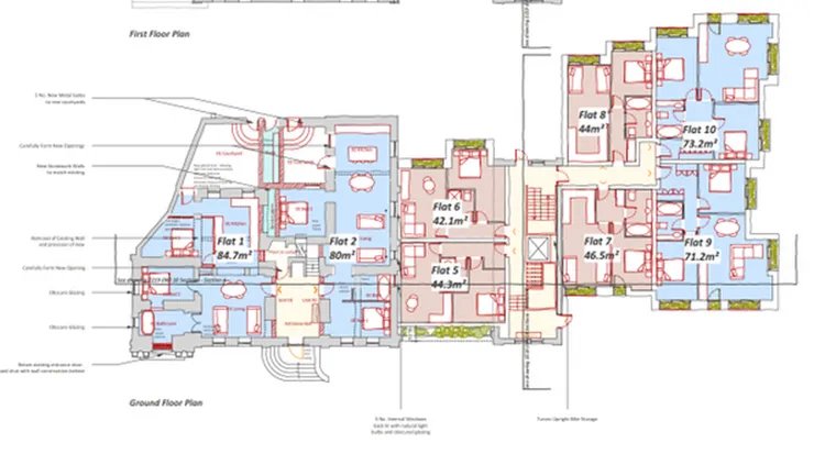
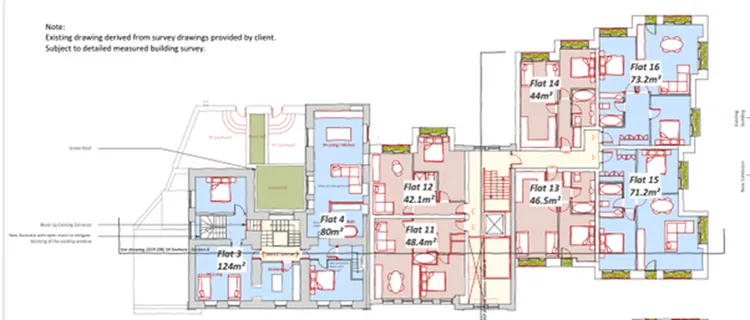
House (unspecified) Property Description: A Grade II listed former Royal Bank Of Scotland building located in the Town Centre of Matlock. Planning permission is pending for 16 apartments in a scheme of conversion and newbuild development. The permission is expected shortly. Planning References 23/01229/FUL and 23/01230/LBALT. Prospective buyers are advised to make all necessary independent enquiries prior to placing their bid as this will be binding. The site will comprise 8x One bedrooms Apartments ranging from 42sqm - 48Sqm and 8x large 2 Bedroom Apartments ranging from 71 sqm - 129 sqm. Total accommodation will offer over 850 sqm / 9150 Sqft. There is ample space for associated car parking, including Electric Vehicle Charging points and communal grounds and gardens. Currently part of the grounds are rented out to provide an income of £27,600 per annum. the parking area of the site is currently leased to a parking firm for annual rent of £15,600 per year. The garages are rented for £12,000 per year. Matlock is an historic spa and county town of Derbyshire, situated on the southern edge of the Peak District and within the Derbyshire Dales. The Town Centre contains a broad range of retail outlets serving the parish population and the wider urban catchment, as well as tourist visitors. It has been subject to investment with an M&S Foodhall and hosts the Derbyshire County Council headquarters. The former RBS building is in walking distance of the Train Station, Hall Leys Park and the towns primary retail area. Tenure: Freehold. Part let/part vacant. Listed Building Yes Utilities Information Electric Supply: Mains Supply Water Supply: Mains Supply Sewerage Arrangements: Mains Supply Parking Arrangements Driveway, Garage Auction Details The sale of this property will take place on the stated date by way of Auction Event and is being sold under and Unconditional sale type. Binding contracts of sale will be exchanged at the point of sale. All sales are subject to SDL Property Auctions Buyers Terms. Properties located in Scotland will be subject to applicable Scottish law. Auction Deposit and Fees The following deposits and non- refundable auctioneers fee apply: • 10% deposit (subject to a minimum of £5,000) • Buyers Fee of 1.2% of the purchase price (subject to a minimum of £1,500 inc. VAT) The Buyers Fee does not contribute to the purchase price, however it will be taken into account when calculating the Stamp Duty Land Tax for the property (known as Land and Buildings Transaction Tax for properties located in Scotland), because it forms part of the chargeable consideration for the property. There may be additional fees listed in the Special Conditions of Sale, which will be available to view within the Legal Pack. You must read the Legal Pack carefully before bidding. Additional Information For full details about all auction methods and sale types please refer to the Auction Conduct Guide which can be viewed on the SDL Property Auctions home page. This guide includes details on the auction registration process, your payment obligations and how to view the Legal Pack (and any applicable Home Report for residential Scottish properties). Guide Price & Reserve Price Each property sold is subject to a Reserve Price. The Reserve Price will be within + or - 10% of the Guide Price. The Guide Price is issued solely as a guide so that a buyer can consider whether or not to pursue their interest. A full definition can be found within the Buyers Terms.

Location
Former Bank Premises, 8 Snitterton Road, Matlock, Derbyshire DE4 3LZ
More Information
Freehold
Snitterton Road
House (unspecified)
Planing Authority
Derbyshire Dales LPA
Sold Price History
21 Nov 2024Unsold Lot SDL Property Auctions£600,000
21 Nov 2024Unsold Lot SDL Property Auctions£600,000

Interested in this lot?

GO TO THIS LOT

More Listings from this Auctioneer