Back to properties

Lot 110 - 20 Llys Aneirin, Gorseinon, Swansea, West Glamorgan, SA4 4HW

Llys Aneirin, Gorseinon, Swansea, West Glamorgan, SA4 4HW

£1,000
Residential
About this Property
2024-12-04
1000
Modern
Residential
Description

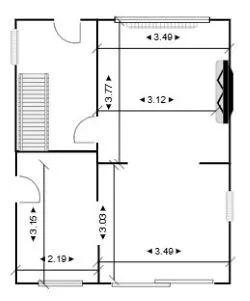
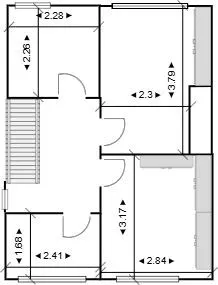
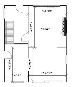
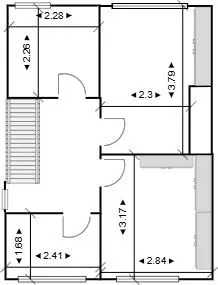
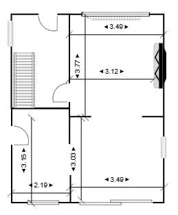
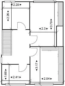
We have for sale by Online Sale a three-bedroom, semi-detached house in Garden Village. The property has through lounge/diner and a kitchen to ground floor, with three bedrooms and a family bathroom to first floor. Externally there is a small garden to front, private drive to front and side with a detached garage. The property benefits from a substantial the rear garden due to it being a corner plot. The property is located at the top of a quiet cul-de-sac close to local amenities schools and colleges with excellent transport links. The property offers excellent investment potential or family home. Tenure: Freehold Council Tax: C EPC: C GROUND FLOOR Entrance hallway: Stairs to first floor, radiator. Open plan reception room to dining room: 7.08m (max) 3.77m (min) x 3.49m - uPVC double glazed window to front, radiator. Dining room: 3.31m x 3.03m – Sliding patio doors to rear, radiator. Kitchen: 3.15m x 2.19m – uPVC window to rear, garden access to side, radiator. FIRST FLOOR Landing: Loft access Bedroom One: 3.79m x 2.46m – uPVC window to font, radiator. Walk In Closet: 2.12m x 0.52m Bedroom Two: 3.17m x 2.84m - uPVC double glazed window to rear, radiator. Bedroom Three: 2.28m x 2.26m – uPVC window to front, radiator. Bathroom: 2.41m x 1.68m – uPVC double glazed window to rear, radiator. EXTERNALLY Garage, off road parking and small walled garden to front, corner plot garden to rear. ONLINE SALE Interested buyers register online and submit their offer through the online platform. All legal documents and information relevant to the property will be available to download online, at www.thepropertyauctionhouse.com. It is the buyers’ responsibility to ensure they have researched all aspects of the property and taken independent legal advice. Purchase funds must be in place when making an offer. Completion timescales are negotiated and agreed upon before an offer is formally accepted. When an offer is accepted, the buyer signs the sales contract and pays the non-refundable deposit and fees. On receipt of contract and funds, the property will be removed from the market and no further offers will be taken. Contracts are exchanged securing the transaction for all parties. FEES Deposit - 10% of purchase price – please note this goes towards the final purchase price. Buyers Fee - £3,000 + VAT

Location
Lot 110 - 20 Llys Aneirin, Gorseinon, Swansea, West Glamorgan, SA4 4HW
More Information
Freehold
Llys Aneirin
Planing Authority
Swansea

Interested in this lot?

GO TO THIS LOT

More Listings from this Auctioneer

Other listings nearby