Back to properties

Lot 110 - 20 Llys Aneirin, Gorseinon, Swansea, West Glamorgan, SA4 4HW

Llys Aneirin, Gorseinon, Swansea, West Glamorgan, SA4 4HW

£145,000
Residential
About this Property
2025-11-26
145000
Modern
Residential
Description

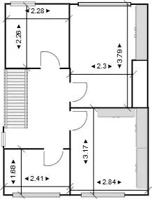
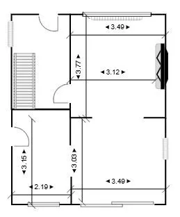
We have for sale by online auction a three-bedroom, semi-detached house in the popular residential area of Garden Village. The property has an open plan through lounge-dining room and a kitchen to ground floor, with three bedrooms and a family bathroom to first floor. Externally there is a small garden to front, private drive to front and side with a detached garage. The property benefits from a substantial rear garden due to it being a corner plot. The property is located at the top of a quiet cul-de-sac close to local amenities schools and colleges with excellent transport links. The property offers excellent investment potential or family home. Tenure: Freehold Council Tax: C EPC: C GROUND FLOOR Entrance hallway: Stairs to first floor, radiator. Open plan reception room to dining room: 7.08m (max) 3.77m (min) x 3.49m - uPVC double glazed window to front, radiator. Dining room: 3.31m x 3.03m – Sliding patio doors to rear, radiator. Kitchen: 3.15m x 2.19m – uPVC window to rear, garden access to side, radiator. FIRST FLOOR Landing: Loft access Bedroom One: 3.79m x 2.46m – uPVC window to font, radiator. Walk In Closet: 2.12m x 0.52m Bedroom Two: 3.17m x 2.84m - uPVC double glazed window to rear, radiator. Bedroom Three: 2.28m x 2.26m – uPVC window to front, radiator. Bathroom: 2.41m x 1.68m – uPVC double glazed window to rear, radiator. EXTERNALLY Garage, off road parking and small walled garden to front, corner plot garden to rear. PLEASE NOTE It is the responsibility of all purchasers to conduct their own investigation into all aspects of the property and seek legal advice. The Legal Pack will be available on our website prior to bidding commencing. Please note legal packs can be downloaded through The Property Auction House website. www.thepropertyauctionhouse.com PAYMENTS To bid online you will be required to pay a holding fee this will only be withdrawn from your account should you be the successful bidder.  To exchange you will be required to pay a 10% deposit and sign the contract within 24 hours and complete the transaction paying the balance of funds within 28 days, (this timescale may vary always read the contract in the Legal Pack for confirmation).We always strongly recommend ensuring your finances are in place prior to the auction, due to the timescales involved. A buyer’s premium fee is only payable should a property be sold pre auction, this fee is 2% subject to a minimum fee of £3,500 +VAT

Location
Lot 110 - 20 Llys Aneirin, Gorseinon, Swansea, West Glamorgan, SA4 4HW
More Information
Freehold
Llys Aneirin
Planing Authority
Swansea

Interested in this lot?

GO TO THIS LOT

More Listings from this Auctioneer

Other listings nearby