Pygott & Crone is a trusted high street estate agent with nine branches across the East Midlands. Established in 1991, they offer a full range of property services, including sales, lettings, new homes, mortgage advice, commercial property, and RICS surveys. Their commitment to excellent service, local expertise, and the latest technology ensures a seamless experience for buyers and sellers alike.
Read more Read more2 bed Bungalow
High Street, LINCOLN, Lincolnshire, LN4 3QT
About this Property
Description
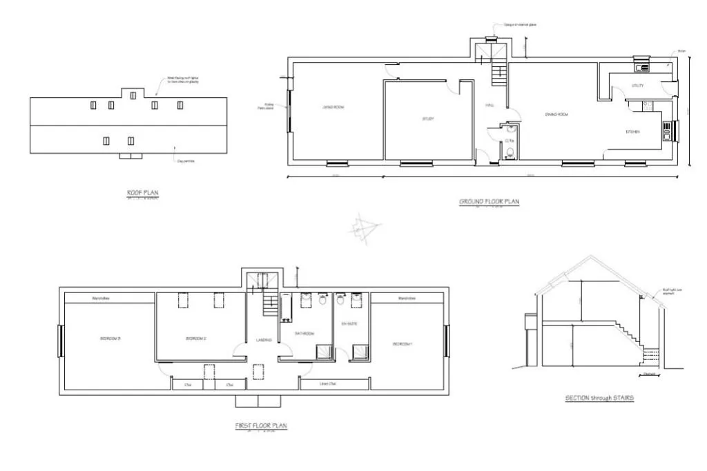
Unusual but exciting opportunity and offered for sale with no onward chain. All on one title are two adjoining one bedroomed bungalows together with gardens that have planning permission for the erection of a detached three-bedroom house but this has to be in conjunction with the original property as an annexe. This provides immense potential, once built, to use the overall accommodation in a variety of ways over and above as a straight forward multi generation home. For example, shorthold lettings or even holiday lettings. The property has extensive parking and enjoys a pleasant location toward the centre of this small but popular village. The existing bungalow(s) comprise – hall, sitting room, conservatory, kitchen, bedroom and bathroom together with further accommodation in the adjoining of hall, kitchen, sitting room with fold away bed, bedroom and shower room. The properties have electric heating. The detached annexe was granted permission by North Kesteven District Council on 13.10.2017 under application reference 17/0928/FUL for the erection of detached annexe. Link to NKDC planning portal 17/0928/FUL | Erection of detached annexe | Land Adjacent To 94A The Stables High Street Martin Lincoln Lincolnshire LN4 3QT This would provide accommodation to include hall, WC, lounge, study or potential 4th bedroom, dining kitchen, landing, three double bedrooms, en suite shower room and main bathroom. Outside the property has an extensive driveway providing ample parking. The main grounds are to the rear and currently extensive lawn backing on to adjacent farmland hence quite private. Auctioneer comments This property is for sale by the Modern Method of Auction, meaning the buyer and seller are to Complete within 56 days (the "Reservation Period"). Interested parties personal data will be shared with the Auctioneer (iamsold). If considering buying with a mortgage, inspect and consider the property carefully with your lender before bidding. A Buyer Information Pack is provided. The winning bidder will pay £349.00 including VAT for this pack which you must view before bidding. The buyer signs a Reservation Agreement and makes payment of a non-refundable Reservation Fee of 4.5% of the purchase price including VAT, subject to a minimum of £6,600.00 including VAT. This is paid to reserve the property to the buyer during the Reservation Period and is paid in addition to the purchase price. This is considered within calculations for Stamp Duty Land Tax. Services may be recommended by the Agent or Auctioneer in which they will receive payment from the service provider if the service is taken. Any payment that will be received by the Agent or Auctioneer will be confirmed to you in writing before services are taken. Services are optional.

































































