Back to properties

Former Argos Building Central Road, Alfreton, Derbyshire, DE55 7BH

Former Argos Building Central Road, Alfreton, Derbyshire, DE55 7BH

£690,000
Commercial
About this Property
2025-01-30
690000
Traditional
Commercial
Description

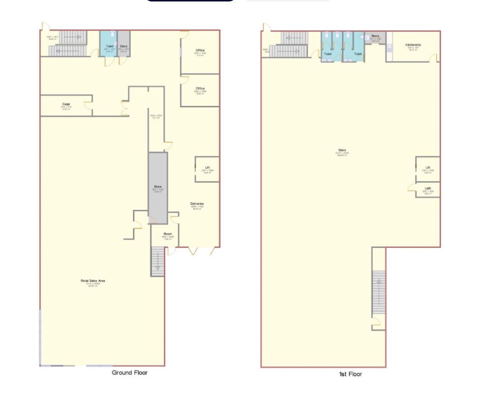
For sale by Unconditional Online Auction. A detached retail unit expanding 12,077 Sq. Ft in Alfreton. A detached retail unit expanding 12,077 Sq. Ft in Alfreton, Derbyshire. Sold with vacant possession A substantial commercial building occupying an excellent trading position, surrounded by a multitude of other national retailers within Alfreton Town Centre. The area is densely populated, ensuring a constant flow of footfall, ideal for a number of potential uses. The property is well maintained and offers 12,077 sq ft. Split over two floors the property features a large retail area, offices, restrooms, a staff breakout area and a large storage space. Please see the floor plan for a full breakdown. Previously, the site was let on a long term basis to Argos, now sold vacant the property offers huge potential for buyers. In the local area you will find excellent transport links and a 170 space carpark opposite. The premises is subject to Class E planning use. Draft Sales Details These sales details are awaiting vendor approval. Tenure: Freehold EPC Rating: E Terms: Auction Details: The sale of this property will take place on the stated date by way of Timed Auction and is being sold under an Unconditional sale type. Binding contracts of sale will be exchanged at the point of sale. All sales are subject to SDL Property Auctions Buyers Terms. Properties located in Scotland will be subject to applicable Scottish law. Auction Deposit and Fees: The following deposits and non- refundable auctioneers fees apply: - 5% deposit (subject to a minimum of £5,000) - Buyers Fee of 3.4% inc VAT of the purchase price The Buyers Fee does not contribute to the purchase price, however it will be taken into account when calculating the Stamp Duty Land Tax for the property (known as Land and Buildings Transaction Tax for properties located in Scotland), because it forms part of the chargeable consideration for the property. There may be additional fees listed in the Special Conditions of Sale, which will be available to view within the Legal Pack. You must read the Legal Pack carefully before bidding. Additional Information: For full details about all auction methods and sale types please refer to the Auction Conduct Guide which can be viewed on the SDL Property Auctions home page. This guide includes details on the auction registration process, your payment obligations and how to view the Legal Pack (and any applicable Home Report for residential Scottish properties). Guide Price & Reserve Price: Each property sold is subject to a Reserve Price. The Reserve Price will be within + or - 10% of the Guide Price. The Guide Price is issued solely as a guide so that a buyer can consider whether or not to pursue their interest. A full definition can be found within the Buyers Terms.

Location
Former Argos Building Central Road, Alfreton, Derbyshire, DE55 7BH
More Information
Freehold
Central Road
Planing Authority
Amber Valley LPA

Interested in this lot?

GO TO THIS LOT

More Listings from this Auctioneer