14 Lime Street, Moretonhampstead, Newton Abbot, Devon, TQ13 8LT

14 Lime Street, Moretonhampstead, Newton Abbot, Devon, TQ13 8LT

£290,000
Residential
Withdrawn
About this Property
26 March 2026
26 March 2026
Withdrawn
£290,000
Traditional
Residential
Description

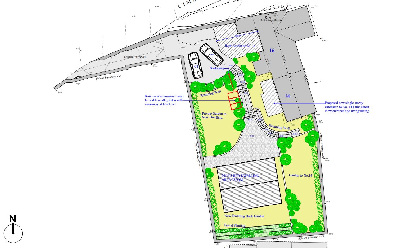
A freehold semi-detached cottage with three bedrooms and an approximate size of 947 sq. ft. is situated on a plot of 0.173 acres in Moretonhampstead, within Dartmoor National Park. The property is in need of modernisation and repair and is currently vacant. It is located within easy reach of local amenities, including shops, schools, and healthcare facilities. There is potential for further development, subject to obtaining the necessary planning consents.

Location
Map location for 14 Lime Street, Moretonhampstead, Newton Abbot, Devon, TQ13 8LT
More Information
Freehold
Planning Authority
Dartmoor National Park LPA
Address History
07 May 2026Available Lot Network Auctions£310,000

Interested in this lot?

GO TO THIS LOT

More Listings from this Auctioneer

Other listings nearby

DISCLAIMER

No Affiliation: PropertyAuctions.io is an independent service and is not affiliated with, endorsed by, or connected to any auction house, auctioneer, or property owner listed on this site.

Information Accuracy: All property information, including auction dates, descriptions, images, and pricing, is provided for informational purposes only and may contain errors or be outdated. We make no guarantee regarding accuracy or completeness.

Third-Party Content: Property images and descriptions are sourced from publicly available information. We do not claim ownership of content that may be copyrighted by auction houses or other parties.

Your Responsibility: You must verify all information directly with the relevant auction house before bidding or making any decisions. PropertyAuctions.io is not liable for any errors, omissions, or losses arising from use of this website.

Report Issues: If you spot an error or have copyright concerns, please report it here.

View Full Terms and Conditions