74 Harwell Street, Plymouth, Devon, PL1 5RY

74 Harwell Street, Plymouth, Devon, PL1 5RY

£840,000
Residential
Unsold
About this Property
2020-02-20
Unsold
£840,000
Traditional
Residential
Description

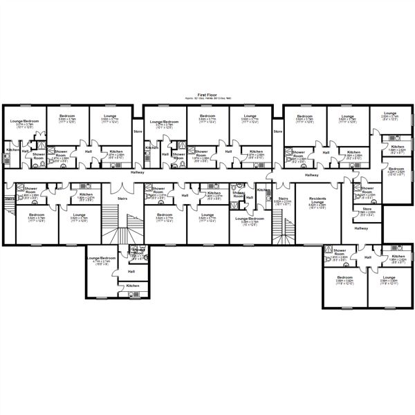
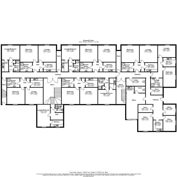
A freehold block containing 13 one-bedroom flats and 7 studio flats, with an approximate total area of 11,324 square feet. The property is located in an established residential area within 500 meters of the University of Plymouth campus and requires some refurbishment. There is potential for development to create additional flats by utilizing communal areas and adding another floor, subject to necessary consents.

Location
74 Harwell Street, Plymouth, Devon, PL1 5RY
More Information
Freehold
Harwell Street
Planning Authority
Plymouth LPA
Property History
02 Apr 2020Unsold Lot Network Auctions£840,000
15 Jul 2020Unsold Lot Network Auctions£790,000
10 Sep 2020Withdrawn Lot Network Auctions£725,000
21 Oct 2021Withdrawn Lot Network Auctions
09 Dec 2021Sold Lot Network Auctions£960,000

Interested in this lot?

GO TO THIS LOT
DISCLAIMER

No Affiliation: PropertyAuctions.io is an independent service and is not affiliated with, endorsed by, or connected to any auction house, auctioneer, or property owner listed on this site.

Information Accuracy: All property information, including auction dates, descriptions, images, and pricing, is provided for informational purposes only and may contain errors or be outdated. We make no guarantee regarding accuracy or completeness.

Third-Party Content: Property images and descriptions are sourced from publicly available information. We do not claim ownership of content that may be copyrighted by auction houses or other parties.

Your Responsibility: You must verify all information directly with the relevant auction house before bidding or making any decisions. PropertyAuctions.io is not liable for any errors, omissions, or losses arising from use of this website. Report Issues: If you spot an error or have copyright concerns, please report it here.

View Full Terms and Conditions

More Listings from this Auctioneer