17 Penrose, Hengrove, BS14 0AQ

17 Penrose, Hengrove, BS14 0AQ

£400,000
Residential
Sold
About this Property
2022-09-14
Sold
£400,000
Traditional
Residential
£400,000
Description

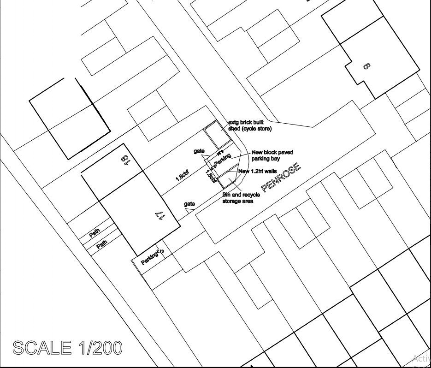
A freehold semi-detached house with 5 bedrooms and a total area of 1788 sq ft. The property is arranged over two floors and includes a garage and a garden at the rear. Two of the original bedrooms and the ground floor living space require further work to be habitable. It is sold with vacant possession and is located in the Bristol City Council area, with a council tax band of C. Planning permission was granted in 2014 to convert the house into two 3-bedroom homes, although this has since lapsed.

Location
17 Penrose, Hengrove, BS14 0AQ
More Information
Not Specified
Penrose
Planning Authority
Bristol, City of LPA
Property History
09 Jan 1998Sold£62,995
23 Jun 2000Sold£83,000
09 Nov 2022Sold£400,000

Interested in this lot?

GO TO THIS LOT
DISCLAIMER

No Affiliation: PropertyAuctions.io is an independent service and is not affiliated with, endorsed by, or connected to any auction house, auctioneer, or property owner listed on this site.

Information Accuracy: All property information, including auction dates, descriptions, images, and pricing, is provided for informational purposes only and may contain errors or be outdated. We make no guarantee regarding accuracy or completeness.

Third-Party Content: Property images and descriptions are sourced from publicly available information. We do not claim ownership of content that may be copyrighted by auction houses or other parties.

Your Responsibility: You must verify all information directly with the relevant auction house before bidding or making any decisions. PropertyAuctions.io is not liable for any errors, omissions, or losses arising from use of this website. Report Issues: If you spot an error or have copyright concerns, please report it here.

View Full Terms and Conditions

More Listings from this Auctioneer

Other listings nearby