Development Site @, 23, Montpelier, Weston-Super-Mare, BS23 2RJ

Development Site @, 23, Montpelier, Weston-Super-Mare, BS23 2RJ

£350,000
Land
Auction Ended
About this Property
15 October 2025
Auction Ended
£350,000
Traditional
Land
Description

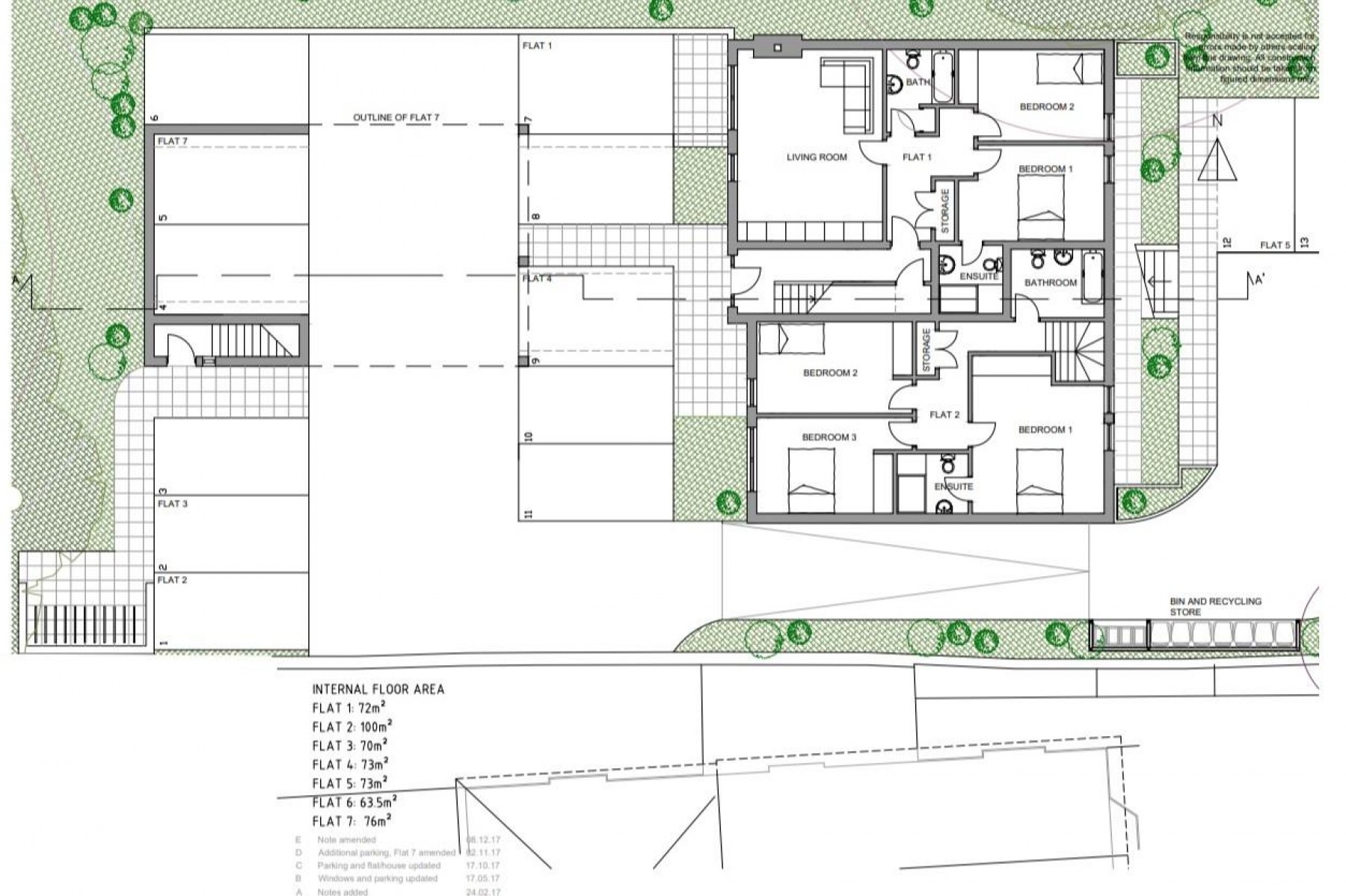
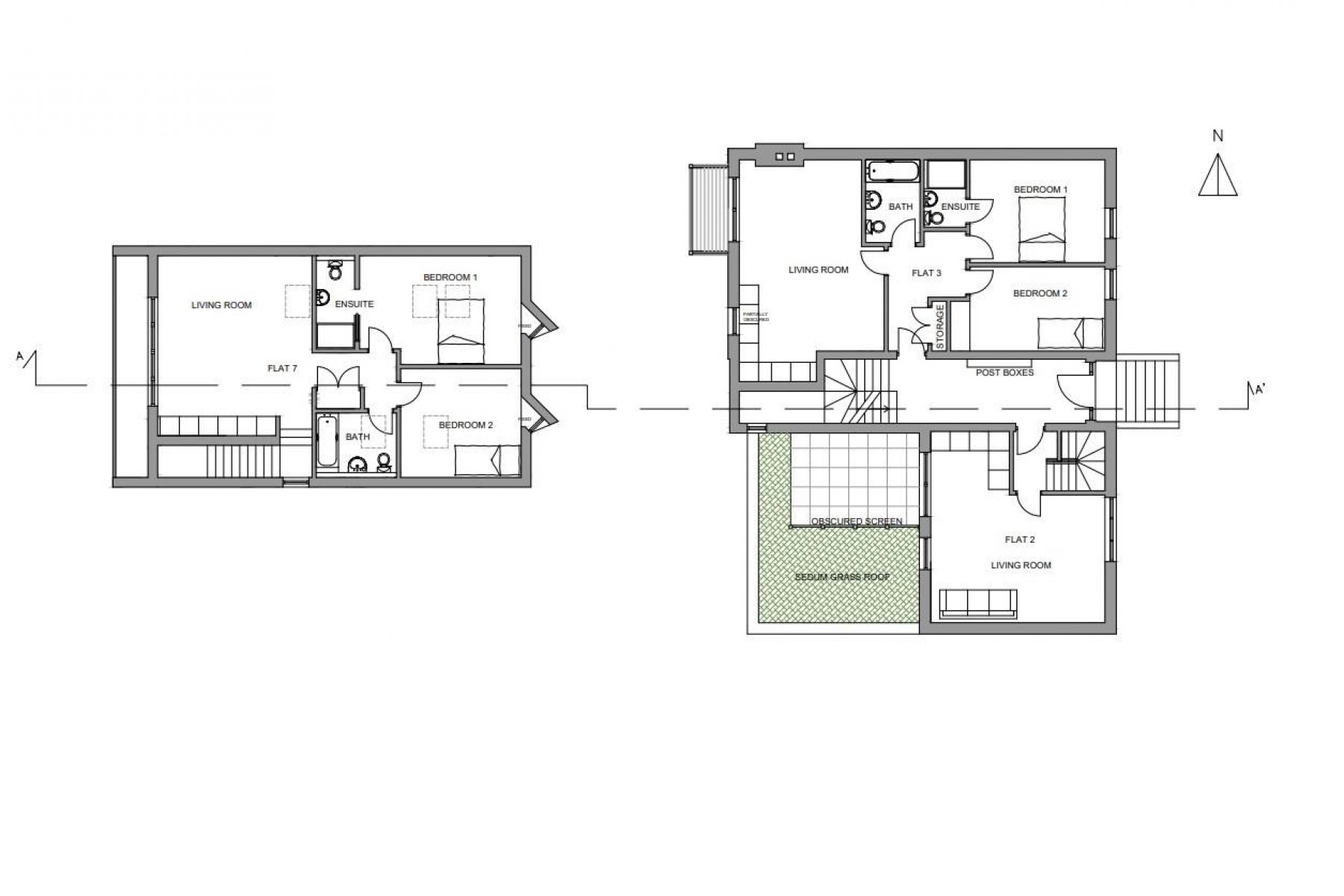
This property is a development site of 0.49 acres with planning granted for the construction of 7 residential units. The approved scheme includes 4 two-bedroom, two-bath apartments, 1 three-bedroom, two-bath duplex, 1 one-bedroom, one-bath flat, and 1 two-bedroom, two-bath coach house. The site has been excavated and is ready for foundations. There is allocated off-street parking available. The total anticipated gross development value (GDV) is £1.895 million.

Location
Map location for Development Site @, 23, Montpelier, Weston-Super-Mare, BS23 2RJ
More Information
Freehold
Montpelier
Planning Authority
North Somerset LPA
Property History
17 Sep 2025Withdrawn Lot Hollis Morgan£325,000
15 Oct 2025Withdrawn Lot Hollis Morgan£350,000
11 Feb 2026Auction Ended Lot Hollis Morgan£350,000

Interested in this lot?

GO TO THIS LOT

More Listings from this Auctioneer

Other listings nearby

DISCLAIMER

No Affiliation: PropertyAuctions.io is an independent service and is not affiliated with, endorsed by, or connected to any auction house, auctioneer, or property owner listed on this site.

Information Accuracy: All property information, including auction dates, descriptions, images, and pricing, is provided for informational purposes only and may contain errors or be outdated. We make no guarantee regarding accuracy or completeness.

Third-Party Content: Property images and descriptions are sourced from publicly available information. We do not claim ownership of content that may be copyrighted by auction houses or other parties.

Your Responsibility: You must verify all information directly with the relevant auction house before bidding or making any decisions. PropertyAuctions.io is not liable for any errors, omissions, or losses arising from use of this website.

Report Issues: If you spot an error or have copyright concerns, please report it here.

View Full Terms and Conditions