27, Eastover, Bridgwater, TA6 5AW

27, Eastover, Bridgwater, TA6 5AW

£275,000
Land
Available
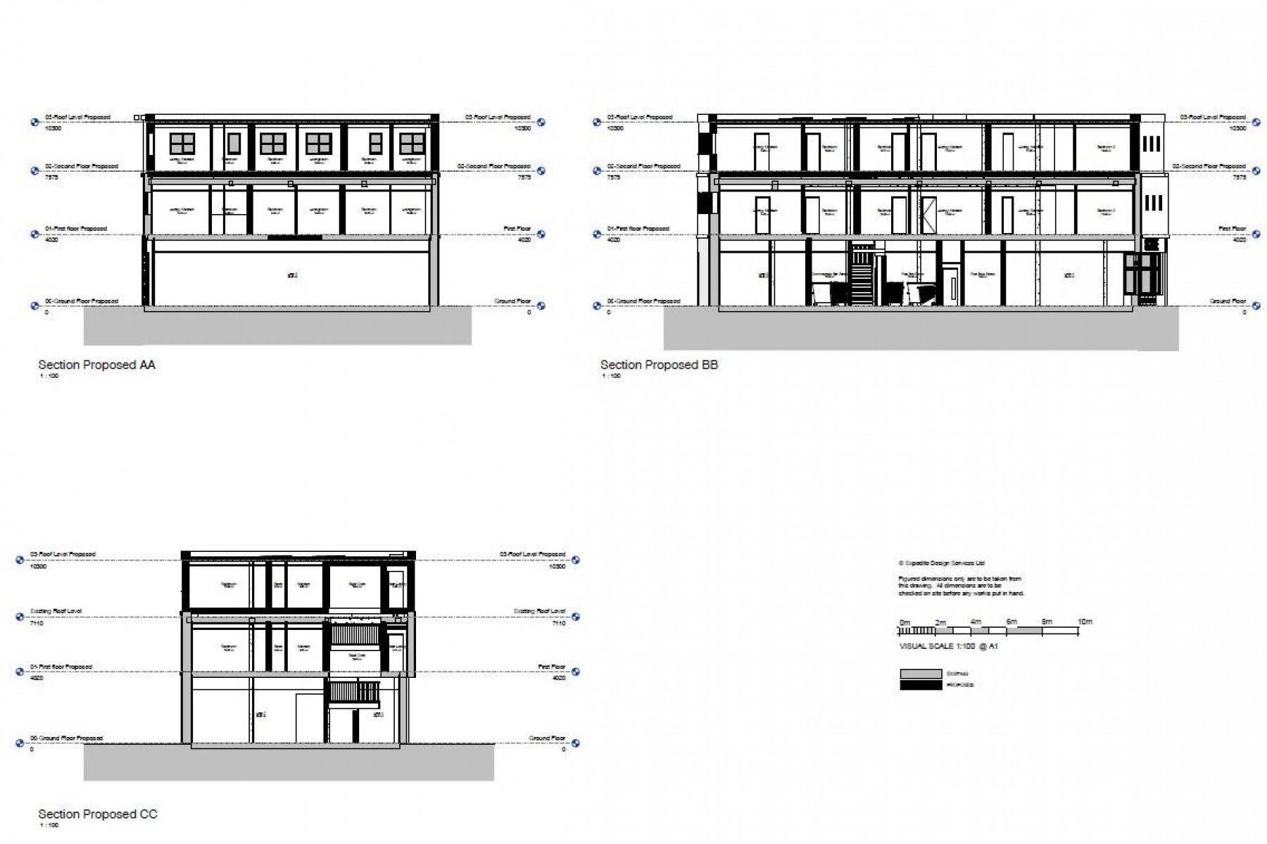
About this Property
2026-02-11
Available
£275,000
Traditional
Land
Location
27, Eastover, Bridgwater, TA6 5AW
More Information
Freehold
Eastover
Planning Authority
Sedgemoor LPA
Property History
21 Oct 2014Sold Lot Allsop£184,000
03 Dec 2014Sold£184,000
11 Feb 2026Available Lot Hollis Morgan£275,000

Interested in this lot?

GO TO THIS LOT
DISCLAIMER

No Affiliation: PropertyAuctions.io is an independent service and is not affiliated with, endorsed by, or connected to any auction house, auctioneer, or property owner listed on this site.

Information Accuracy: All property information, including auction dates, descriptions, images, and pricing, is provided for informational purposes only and may contain errors or be outdated. We make no guarantee regarding accuracy or completeness.

Third-Party Content: Property images and descriptions are sourced from publicly available information. We do not claim ownership of content that may be copyrighted by auction houses or other parties.

Your Responsibility: You must verify all information directly with the relevant auction house before bidding or making any decisions. PropertyAuctions.io is not liable for any errors, omissions, or losses arising from use of this website. Report Issues: If you spot an error or have copyright concerns, please report it here.

View Full Terms and Conditions

More Listings from this Auctioneer

Other listings nearby