Flat 108, Altitude Apartments, 9, Altyre Road, CROYDON, Surrey, CR0 5BP

Flat 108, Altitude Apartments, 9, Altyre Road, CROYDON, Surrey, CR0 5BP

£230,000
Residential
Withdrawn
About this Property
24 June 2025
Withdrawn
£230,000
Traditional
Residential
Description

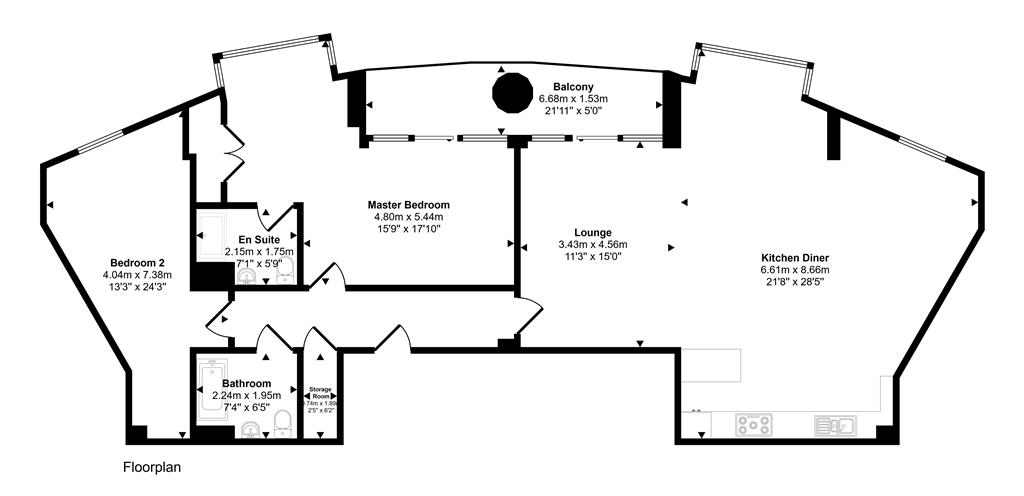
This property is a leasehold, self-contained flat located on the twenty-first floor. It features two bedrooms, a reception room, a kitchen, and a bathroom/WC. The property has a lease term of 125 years starting from June 1, 2009. It has an EPC rating of B and is in Council Tax Band F. Public transport options are available nearby, including West Croydon London Overground Station, along with local tram and bus services. There are various shopping amenities, bars, and restaurants in the vicinity, as well as recreational areas such as Park Hill Park and Lloyd Park.

Location
Map location for Flat 108, Altitude Apartments, 9, Altyre Road, CROYDON, Surrey, CR0 5BP
More Information
Leasehold
Planning Authority
Croydon LPA
Address History
11 Feb 2014Sold£480,000
19 Nov 2024Unsold Lot Barnard Marcus Auctions£270,000
17 Dec 2024Unsold Lot Barnard Marcus Auctions£260,000

Interested in this lot?

GO TO THIS LOT

More Listings from this Auctioneer

Other listings nearby

DISCLAIMER

No Affiliation: PropertyAuctions.io is an independent service and is not affiliated with, endorsed by, or connected to any auction house, auctioneer, or property owner listed on this site.

Information Accuracy: All property information, including auction dates, descriptions, images, and pricing, is provided for informational purposes only and may contain errors or be outdated. We make no guarantee regarding accuracy or completeness.

Third-Party Content: Property images and descriptions are sourced from publicly available information. We do not claim ownership of content that may be copyrighted by auction houses or other parties.

Your Responsibility: You must verify all information directly with the relevant auction house before bidding or making any decisions. PropertyAuctions.io is not liable for any errors, omissions, or losses arising from use of this website.

Report Issues: If you spot an error or have copyright concerns, please report it here.

View Full Terms and Conditions