AcuitusAcuitus Auctions is a leading commercial property auction house, specialising in investment strategies and client-focused service. They provide expert guidance through a sophisticated multi-channel auction platform.
Read more Read more30-32 Granby Street Leicester Leicestershire LE1 1DE
AcuitusAcuitus Auctions is a leading commercial property auction house, specialising in investment strategies and client-focused service. They provide expert guidance through a sophisticated multi-channel auction platform.
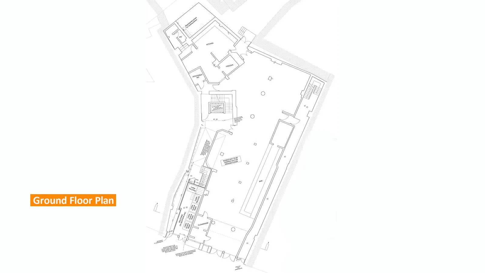
Read more Read moreThe property is a 5-storey building that includes a coffee shop/restaurant on the ground floor and basement, along with 27 separately accessed residential flats on the upper floors. The residential units consist of 17 studios, 5 one-bedroom, 2 two-bedroom, and 3 three-bedroom flats, all fully let. The total size of the property is approximately 1,611 square meters (17,344 square feet). The coffee shop/restaurant is leased until February 2035. The building is located in a central area near various restaurants and bars, and is a 7-minute walk from Leicester Railway Station.

No Affiliation: PropertyAuctions.io is an independent service and is not affiliated with, endorsed by, or connected to any auction house, auctioneer, or property owner listed on this site.
Information Accuracy: All property information, including auction dates, descriptions, images, and pricing, is provided for informational purposes only and may contain errors or be outdated. We make no guarantee regarding accuracy or completeness.
Third-Party Content: Property images and descriptions are sourced from publicly available information. We do not claim ownership of content that may be copyrighted by auction houses or other parties.
Your Responsibility: You must verify all information directly with the relevant auction house before bidding or making any decisions. PropertyAuctions.io is not liable for any errors, omissions, or losses arising from use of this website.
Report Issues: If you spot an error or have copyright concerns, please report it here.