Robert Watts is a trusted estate agent with offices in Birkenshaw, Cleckheaton, Five Lane Ends, and Wibsey. They specialize in property sales, lettings, and management, offering expert local knowledge and dedicated customer service across West Yorkshire.
Read more Read more16 bed Commercial Property
Pollard Lane, Bradford, West Yorkshire, BD2 4RW
About this Property
Description
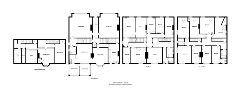
For sale by Modern Method of Auction Starting Bid Price £680,000 plus Reservation Fee. A former 16 room care home with a commercial EPC rating of B... suitable for a variety of uses including HMO (subject to necessary permissions / licence) Rarely do mature buildings of this calibre and size (circa 5,600 sq. ft.) appear on the open market, especially in this part of BD2. Handy for multiple local amenities and offering access to both the City Centre and the ring road Auctioneer comments This property is for sale by the Modern Method of Auction, meaning the buyer and seller are to Complete within 56 days (the "Reservation Period"). Interested parties personal data will be shared with the Auctioneer (iamsold). If considering buying with a mortgage, inspect and consider the property carefully with your lender before bidding. A Buyer Information Pack is provided. The winning bidder will pay £349.00 including VAT for this pack which you must view before bidding. The buyer signs a Reservation Agreement and makes payment of a non-refundable Reservation Fee of 4.5% of the purchase price including VAT, subject to a minimum of £6,600.00 including VAT. This is paid to reserve the property to the buyer during the Reservation Period and is paid in addition to the purchase price. This is considered within calculations for Stamp Duty Land Tax. Services may be recommended by the Agent or Auctioneer in which they will receive payment from the service provider if the service is taken. Any payment that will be received by the Agent or Auctioneer will be confirmed to you in writing before services are taken. Services are optional.
Location



















