4 Niallesway Palmerston Street, Consett, County Durham, DH8 5RB

4 Niallesway Palmerston Street, Consett, County Durham, DH8 5RB

£100,000
Residential
Withdrawn
About this Property
03 November 2025
04 November 2025
Withdrawn
£100,000
Traditional
Residential
Description

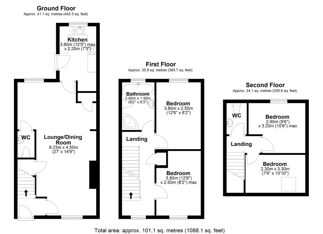
This property is a four-bedroom end terraced townhouse arranged over three floors. The ground floor includes an open-plan lounge and dining area, a modern fitted kitchen, and a downstairs WC. The first floor contains two double bedrooms and a bathroom with a separate bath and walk-in shower cubicle. The second floor has two additional bedrooms and another WC. Externally, there is a paved garden at the rear, and on-street parking is available at the front. The property is freehold.

Location
Map location for 4 Niallesway Palmerston Street, Consett, County Durham, DH8 5RB
More Information
Freehold
Palmerston Street
Planning Authority
County Durham LPA
Property History
20 Sep 2007Sold£135,000

Interested in this lot?

GO TO THIS LOT

More Listings from this Auctioneer

Other listings nearby

DISCLAIMER

No Affiliation: PropertyAuctions.io is an independent service and is not affiliated with, endorsed by, or connected to any auction house, auctioneer, or property owner listed on this site.

Information Accuracy: All property information, including auction dates, descriptions, images, and pricing, is provided for informational purposes only and may contain errors or be outdated. We make no guarantee regarding accuracy or completeness.

Third-Party Content: Property images and descriptions are sourced from publicly available information. We do not claim ownership of content that may be copyrighted by auction houses or other parties.

Your Responsibility: You must verify all information directly with the relevant auction house before bidding or making any decisions. PropertyAuctions.io is not liable for any errors, omissions, or losses arising from use of this website.

Report Issues: If you spot an error or have copyright concerns, please report it here.

View Full Terms and Conditions