48A Gwendoline Avenue, London, Newham, E13 0RD

48A Gwendoline Avenue, London, Newham, E13 0RD

£199,000
Residential
Unsold
About this Property
2024-06-06
Unsold
£199,000
Traditional
Residential
Description

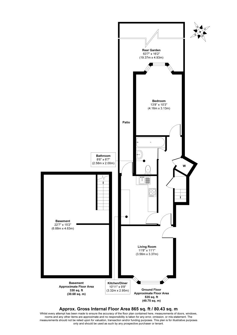
This property is a 1 bedroom ground floor flat with a total area of 535 sq ft and includes a large cellar of 330 sq ft. It features a private garden that extends approximately 60 ft. The flat is habitable but requires cosmetic refurbishment and has potential for reconfiguration to a 2 bedroom layout and conversion of the cellar into additional accommodation, subject to necessary consents. The property is leasehold with 67 years remaining on the lease.

Location
48A Gwendoline Avenue, London, Newham, E13 0RD
More Information
Leasehold
Gwendoline Avenue
Planning Authority
Newham LPA
Property History
21 Mar 2024Unsold Lot Network Auctions£203,000

Interested in this lot?

GO TO THIS LOT
DISCLAIMER

No Affiliation: PropertyAuctions.io is an independent service and is not affiliated with, endorsed by, or connected to any auction house, auctioneer, or property owner listed on this site.

Information Accuracy: All property information, including auction dates, descriptions, images, and pricing, is provided for informational purposes only and may contain errors or be outdated. We make no guarantee regarding accuracy or completeness.

Third-Party Content: Property images and descriptions are sourced from publicly available information. We do not claim ownership of content that may be copyrighted by auction houses or other parties.

Your Responsibility: You must verify all information directly with the relevant auction house before bidding or making any decisions. PropertyAuctions.io is not liable for any errors, omissions, or losses arising from use of this website. Report Issues: If you spot an error or have copyright concerns, please report it here.

View Full Terms and Conditions

More Listings from this Auctioneer

Other listings nearby