Back to properties

6 West End Queensbury BD13 2ER

6 West End Queensbury BD13 2ER

£80,000
Residential
About this Property
2019-10-22
Sold
80000
Traditional
Residential
Description

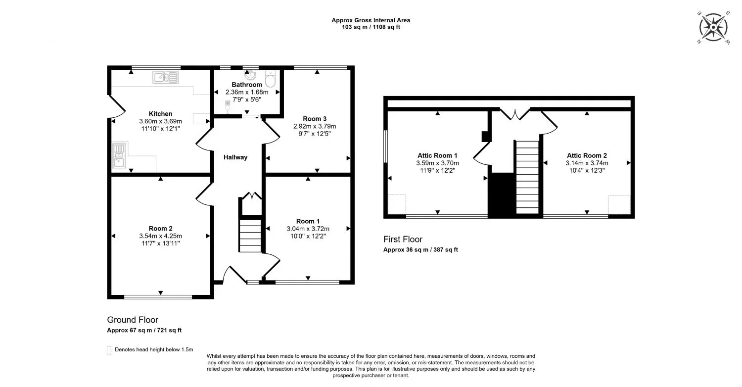
This property is located in Queensbury and offers spacious accommodation with potential for conversion into four bedrooms, subject to relevant planning permission. It includes an entrance porch, entrance hall, lounge, dining room, kitchen, rear hall, and a cellar. There are two bedrooms on the first floor and a three-piece bathroom. The property features uPVC double glazed windows and central heating. It has an energy rating of E and is available with vacant possession.

Location
6 West End Queensbury BD13 2ER
More Information
Not Specified
West End
Property History
12 Jul 2002Sold£57,500
28 Nov 2019Sold£90,000
25 Nov 2020Sold£165,000

Interested in this lot?

GO TO THIS LOT
DISCLAIMER

No Affiliation: PropertyAuctions.io is an independent service and is not affiliated with, endorsed by, or connected to any auction house, auctioneer, or property owner listed on this site.

Information Accuracy: All property information, including auction dates, descriptions, images, and pricing, is provided for informational purposes only and may contain errors or be outdated. We make no guarantee regarding accuracy or completeness.

Third-Party Content: Property images and descriptions are sourced from publicly available information. We do not claim ownership of content that may be copyrighted by auction houses or other parties.

Your Responsibility: You must verify all information directly with the relevant auction house before bidding or making any decisions. PropertyAuctions.io is not liable for any errors, omissions, or losses arising from use of this website. Report Issues: If you spot an error or have copyright concerns, please report it here.

View Full Terms and Conditions

More Listings from this Auctioneer

Other listings nearby