Robinson & Hall Auctions is a leading property auction house with a strong reputation for achieving successful sales across Bedfordshire, Buckinghamshire, and surrounding areas. With decades of experience, they specialize in residential, commercial, agricultural, and land auctions, offering expert advice and a professional approach to ensure the best results for buyers and sellers.
Read more Read more19 Witney Road, Long Hanborough, Witney, OX29 8BH
19 Witney Road, Long Hanborough, Witney, OX29 8BH
About this Property
Description
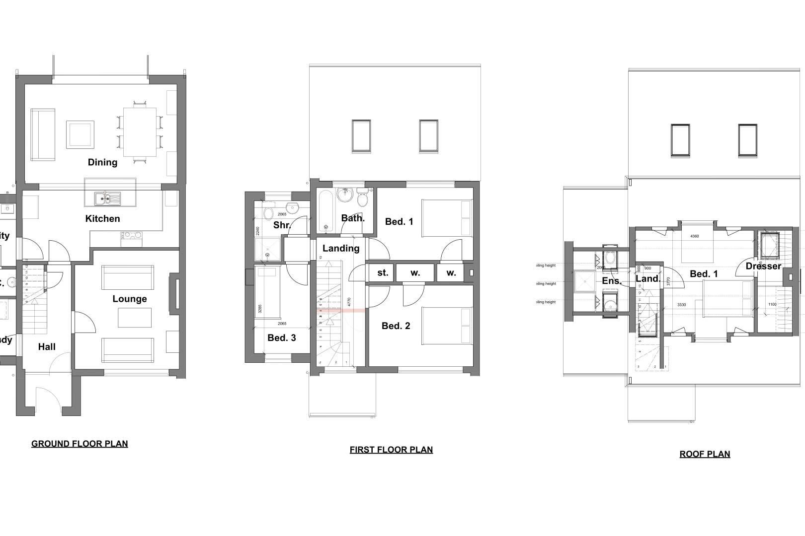
Freehold semi-detached house with two floors, comprising four rooms and a total area of 1,646 square feet. The property includes a parking space and a garden.
Location

More Information
Address History
Property Intelligence
More Listings from this Auctioneer
Other listings nearby
No Affiliation: PropertyAuctions.io is an independent service and is not affiliated with, endorsed by, or connected to any auction house, auctioneer, or property owner listed on this site.
Information Accuracy: All property information, including auction dates, descriptions, images, and pricing, is provided for informational purposes only and may contain errors or be outdated. We make no guarantee regarding accuracy or completeness.
Third-Party Content: Property images and descriptions are sourced from publicly available information. We do not claim ownership of content that may be copyrighted by auction houses or other parties.
Your Responsibility: You must verify all information directly with the relevant auction house before bidding or making any decisions. PropertyAuctions.io is not liable for any errors, omissions, or losses arising from use of this website.
Report Issues: If you spot an error or have copyright concerns, please report it here.









































