PurplebricksPurplebricks Online Auctions, powered by GOTO Auctions, delivers a modern, transparent way to buy or sell property 24/7 online, fast and with the confidence of a digitally driven auction.
Read more Read more59 Thornton Gardens, London, SW12 0LQ
PurplebricksPurplebricks Online Auctions, powered by GOTO Auctions, delivers a modern, transparent way to buy or sell property 24/7 online, fast and with the confidence of a digitally driven auction.
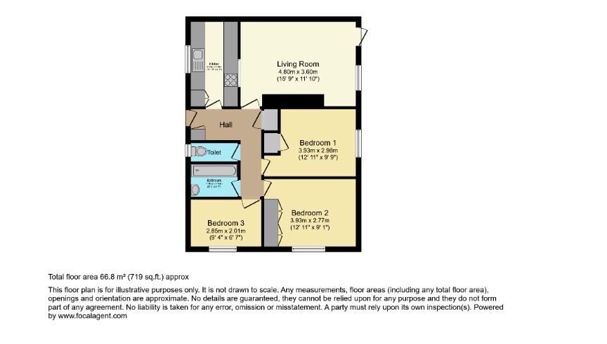
Read more Read moreThis property is a three-bedroom ground floor flat located in a purpose-built development. It includes two double bedrooms with built-in storage, one single bedroom, a separate kitchen, a living room that opens onto a private balcony, a bathroom, and a separate WC. The property is situated within communal grounds that feature tennis courts, well-maintained gardens, and a basketball court. The flat is leasehold with 125 years remaining from September 23, 1985. The property has an Energy Performance Certificate (EPC) rating of 73/77.

No Affiliation: PropertyAuctions.io is an independent service and is not affiliated with, endorsed by, or connected to any auction house, auctioneer, or property owner listed on this site.
Information Accuracy: All property information, including auction dates, descriptions, images, and pricing, is provided for informational purposes only and may contain errors or be outdated. We make no guarantee regarding accuracy or completeness.
Third-Party Content: Property images and descriptions are sourced from publicly available information. We do not claim ownership of content that may be copyrighted by auction houses or other parties.
Your Responsibility: You must verify all information directly with the relevant auction house before bidding or making any decisions. PropertyAuctions.io is not liable for any errors, omissions, or losses arising from use of this website.
Report Issues: If you spot an error or have copyright concerns, please report it here.