Back to properties

Pinfold Lane, Fishlake, Doncaster, South Yorkshire, DN7 5LA - Online Auctions

The Lilacs Pinfold Lane, Fishlake, Doncaster, South Yorkshire, DN7 5LA

£140,000
Residential
About this Property
2023-10-25
140000
Modern
Residential
Description

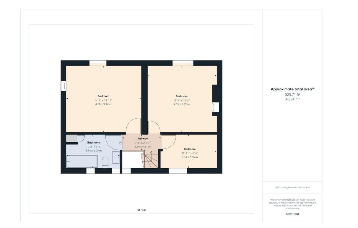
Freehold Fantastic cottage Grade II listed building Vacant & no chain So much potential Extensive barn Well established garden Three bedrooms Sought after location Rural A detached three-bedroom cottage set within a sought-after village location yet convenient for the A19, M18 & M180 motorway links. The property offers much scope for further development with the adjoining outbuildings/barn. The main house and barn would benefit form a new roof. Offering plenty of charm and character, this property would be perfect for a purchaser looking for a restoration project and would make an ideal family home. In brief, the property comprises on the ground floor; two spacious reception rooms, a kitchen, and an inner hallway with stairs leading to the first floor, and store room. The first-floor offers two double bedrooms, a spacious single bedroom, and a three-piece family bathroom. To the outside, there is a beautiful, well-maintained garden to the front as well as driveway parking for several vehicles. The rear offers a large well-established garden that is mainly laid to lawn. The adjoining barn has a wooden extension that has scope to be brought into the property if the barn is converted. The property is on main drains, water and electricity. Fishlake boasts the Hare & Hounds pub and restaurant, cricket and bowling club, ponds, and garden nursery. Plus Truffle Lodge where you can indulge in a relaxing spa day or stay over. Catchment areas for education are Long Toft Primary School and Ash Hill Academy. Tenure FREEHOLD Energy Efficiency Rating - Current 9 Energy Efficiency Rating - Potential 67 Opening Bid and Reserve Price This Property is subject to an undisclosed Reserve Price which in general will not be 10% more than the Opening Bid. The Reserve Price and Opening Bid can be subject to change. The Online Auction terms and conditions apply. Comments Energy Performance Certificate(EPCs) An EPC is broadly like the labels provided with domestic appliances such as refrigerators and washing machines.Its purpose is to record how energy efficient a property is as a building. The certificate will provide a rating of the energy efficiency and carbon emissions of a building from A to G, where A is very efficient, and G is inefficient.The data required to allow the calculation of an EPC includes the age and construction of the building, its insulation and heating method.EPCs are produced using standard methods with standard assumptions about energy usage so that the energy efficiency of one building can easily be compared with another building of the same type.The Energy Performance of Buildings Directive (EPBD) requires that all buildings have an EPC when they are marketed for sale or for let, or when houses are newly built. EPCs are valid for 10 years, or until a newer EPC is prepared.During this period the EPC may be made available to buyers or new tenants.

Location
Pinfold Lane, Fishlake, Doncaster, South Yorkshire, DN7 5LA - Online Auctions
More Information
Not Specified
Pinfold Lane
Planing Authority
Doncaster LPA

Interested in this lot?

GO TO THIS LOT

More Listings from this Auctioneer

Other listings nearby