Back to properties

Property for Auction in Sussex & Hampshire - 28a St. Richards Road, Portslade, Brighton, East Sussex

28a St. Richards Road, Portslade, Brighton, East Sussex, BN41 1PA

£80,000
Land
About this Property
2025-10-23
80000
Traditional
Land
Description

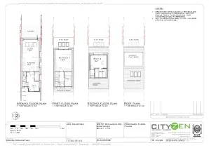
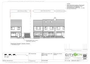
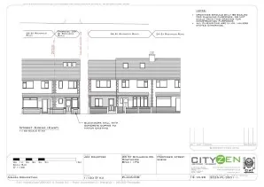
Freehold Development Site (With Lapsed Planning Consent For A 2 x Bedroom Dwelling) An unusual opportunity to acquire a plot of land in Portslade. A planning application was made on the 19th October 2020 for the demolition of existing garage outbuilding and erection of a new two storey house, attached to NO.28 with dormer to rear. New boundary wall. Removal of vehicle crossover. Planning permission was granted on the 24th November 2020. Planning no AWDM/1732/20. Planning permission has now expired.

Copies of Planning drawings are within the legal pack. Situation The property is situated in Portslade just off the A259, with Boundary Road less than half a mile away, with its range of shops, restaurants & cafes. Portslade mainline railway station is approximately 0.8 miles from the property (London Victoria 71 mins).

Location Pin (What3Words): plots.monday.offers https://what3words.com/plots.monday.offers NB WE DRAW YOUR ATTENTION TO THE SPECIAL CONDITIONS IN THE LEGAL PACK, REFERRING TO OTHER CHARGES IN ADDITION TO THE PURCHASE PRICE. PLEASE ENSURE YOU READ THE SPECIAL CONDITIONS THOROUGHLY Tenure Freehold Lot Type Plots/Building Land Important Notice to Prospective Buyers: We draw your attention to the Special Conditions of Sale within the Legal Pack, referring to other charges in addition to the purchase price which may become payable. Such costs may include Search Fees, reimbursement of Sellers costs and Legal Fees, and Transfer Fees amongst others. Additional Fees Administration Charge - Purchasers will be required to pay an Administration fee of 1% (inc VAT) of the sale price, subject to a minimum of £1,750 (inc VAT) Disbursements - Please see the legal pack for any disbursements listed that may become payable by the purchaser on completion.

Location
Property for Auction in Sussex & Hampshire - 28a St. Richards Road, Portslade, Brighton, East Sussex
More Information
Not Specified
St Richard's Road
Land
Planing Authority
Adur LPA

Interested in this lot?

GO TO THIS LOT

More Listings from this Auctioneer

Other listings nearby