Robinson & Hall Auctions is a leading property auction house with a strong reputation for achieving successful sales across Bedfordshire, Buckinghamshire, and surrounding areas. With decades of experience, they specialize in residential, commercial, agricultural, and land auctions, offering expert advice and a professional approach to ensure the best results for buyers and sellers.
Read more Read moreBuilding Plot at 43 Water Lane, Sherington, Newport Pagnell, MK16 9NP
Building Plot at 43 Water Lane, Sherington, Newport Pagnell, MK16 9NP
About this Property
Description
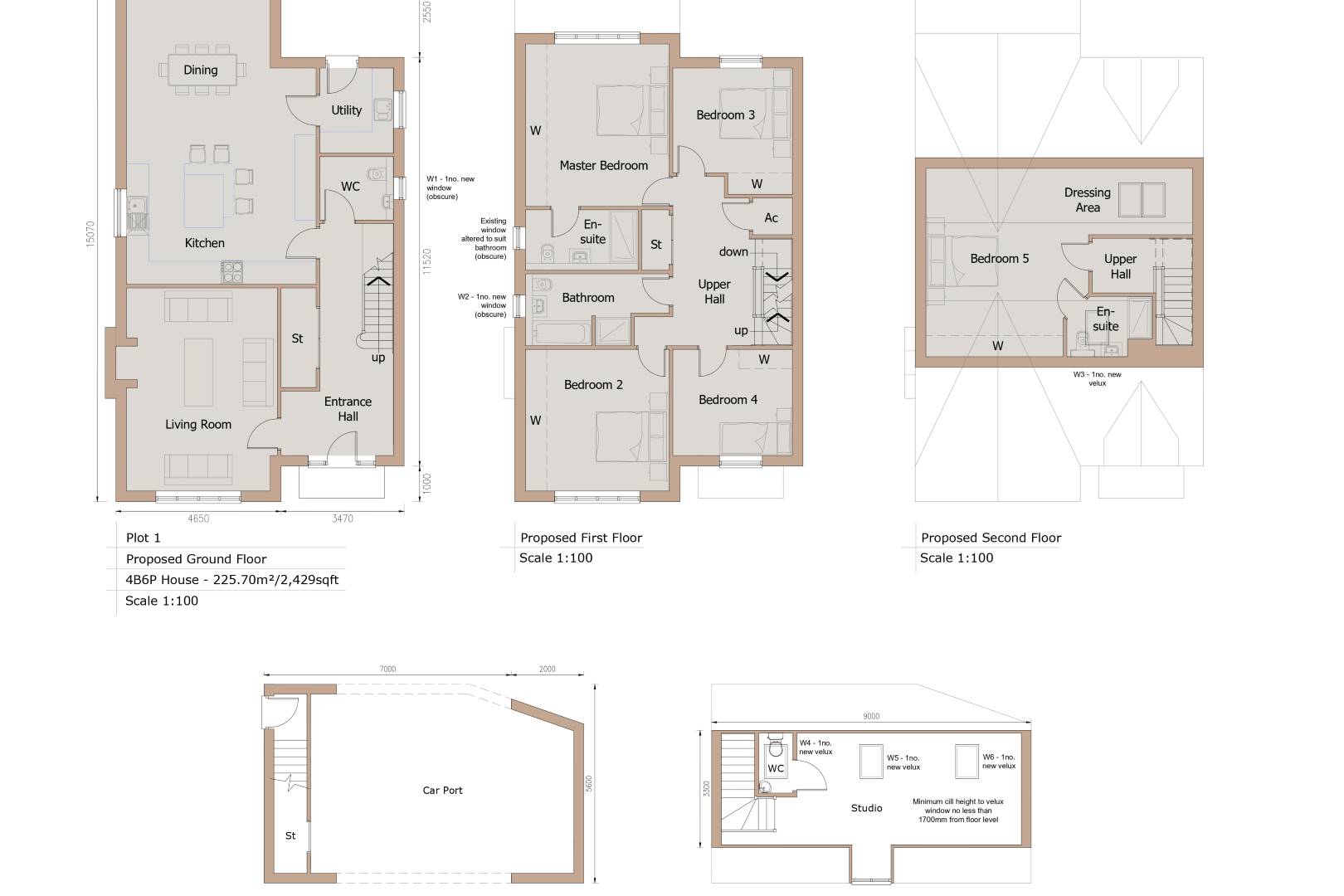
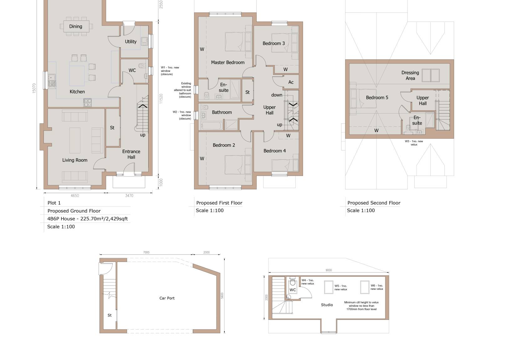
A freehold development land measuring approximately 0.25 acres is available for sale. The site includes an unmodernised farmhouse and has planning permission for the construction of two large detached houses, each with three floors and a total of six rooms. The property also offers parking space and has a total floor area of approximately 2,500 square feet.
Location

More Information
Address History
More Listings from this Auctioneer
Other listings nearby
No Affiliation: PropertyAuctions.io is an independent service and is not affiliated with, endorsed by, or connected to any auction house, auctioneer, or property owner listed on this site.
Information Accuracy: All property information, including auction dates, descriptions, images, and pricing, is provided for informational purposes only and may contain errors or be outdated. We make no guarantee regarding accuracy or completeness.
Third-Party Content: Property images and descriptions are sourced from publicly available information. We do not claim ownership of content that may be copyrighted by auction houses or other parties.
Your Responsibility: You must verify all information directly with the relevant auction house before bidding or making any decisions. PropertyAuctions.io is not liable for any errors, omissions, or losses arising from use of this website.
Report Issues: If you spot an error or have copyright concerns, please report it here.






























