Back to properties

5 Dark Street, Haverfordwest, SA61 2DS

5 Dark Street, Haverfordwest, SA61 2DS

£110,000
Mixed Use
About this Property
2022-07-26
110000
Traditional
Mixed Use
Description

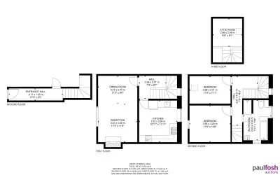
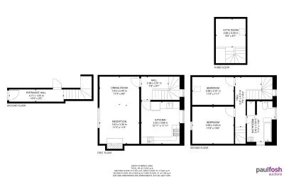
ONLINE AUCTION from 26th JULY - 28TH JULY A substantial freehold building comprising of ground floor offices and a spacious maisonette above. The property has been fully let until recently and enjoyed good occupancy historically but is now offered with vacant possession. Both the offices and the maisonette benefit from gas central heating (not tested) with their own boilers and the building has partial UPVC double glazing. There may be scope for change of use and conversion of the ground floor to a flat (subject to necessary planning consents). There is a rear carpark with space for several vehicles, and we are informed there was previous planning for a rear extension but all enquires should be made via the local authority. The Town of Haverfordwest is the most populous area in Pembrokeshire and is the county’s administrivia area and also has a wealth of shops both with local and national traders. The town is also convenient for the coast and the national park making it ideal for potential holiday let/Airbnb. INVESTORS: If you are looking for assistance in tenant find and/or management packages, information on rental income/interest potential we have a Lettings Department that can help you. Please call us or email [email protected] for invaluable advice. VIRTUAL TOUR Accommodation Ground floor: Main office to front leading to kitchenette and lower office Lower Ground floor: Basement and w/c Maisonette: (with access from Dark Street or rear carpark) Ground Floor: Entrance hallway First Floor: Landing, kitchen, lounge/diner Second Floor: Landing, 2 bedrooms, bathroom Third floor: Attic space Outside: Rear carpark which is accessed from the Castle Park with ample parking for several vehicles Tenancies Office: To be sold with vacant possession. Was previously let at £500pcm Maisonette: To be sold with vacant possession. Was recently let for £550pcm but would let for higher if offered now, potentially £650/700pcm. Potential annual income approx. £20,400 per annum. Auction Fees And Additional Costs Auction fees: The sale of each lot is subject to a buyer’s premium of 1.5% of the purchase price (subject to a minimum of £1,500) including VAT unless otherwise stated. Additional costs: The purchase of the property may be subject to (but are not limited to), VAT (if applicable), reimbursement of the seller’s search fees, reimbursement of seller’s legal and/or sales costs, stamp duty/land transaction tax (LTT). Please check accompanying legal pack for further details. * Generally speaking Guide Prices are provided as an indication of each seller's minimum expectation, i.e. 'The Reserve'. They are not necessarily figures which a property will sell for and may change at any time prior to the auction. Virtually every property will be offered subject to a Reserve (a figure below which the Auctioneer cannot sell the property during the auction) which we expect will be set within the Guide Range or no more than 10% above a single figure Guide.

Location
5 Dark Street, Haverfordwest, SA61 2DS
More Information
Not Specified
Dark Street
Commercial/Residential opportunity
Planing Authority
Pembrokeshire
Sold Price History
08 Feb 2002Sold£105,000
23 Apr 2004Sold£125,000
09 Dec 2005Sold£167,500
20 Sep 2006Sold£165,000
21 Jun 2022Unsold Lot Paul Fosh Auctions Limited£123,000
24 Aug 2022Sold£125,000
01 Sep 2022Sold Lot Paul Fosh Auctions Limited£110,000

Interested in this lot?

GO TO THIS LOT

More Listings from this Auctioneer