Back to properties

Flat A & Flat B, 109 Tottenhall Road, Palmers Green, London N13 6JA

Flat A & Flat B, 109 Tottenhall Road, Palmers Green, London N13 6JA

£400,000
Residential
About this Property
2025-11-05
400000
Traditional
Residential
Description

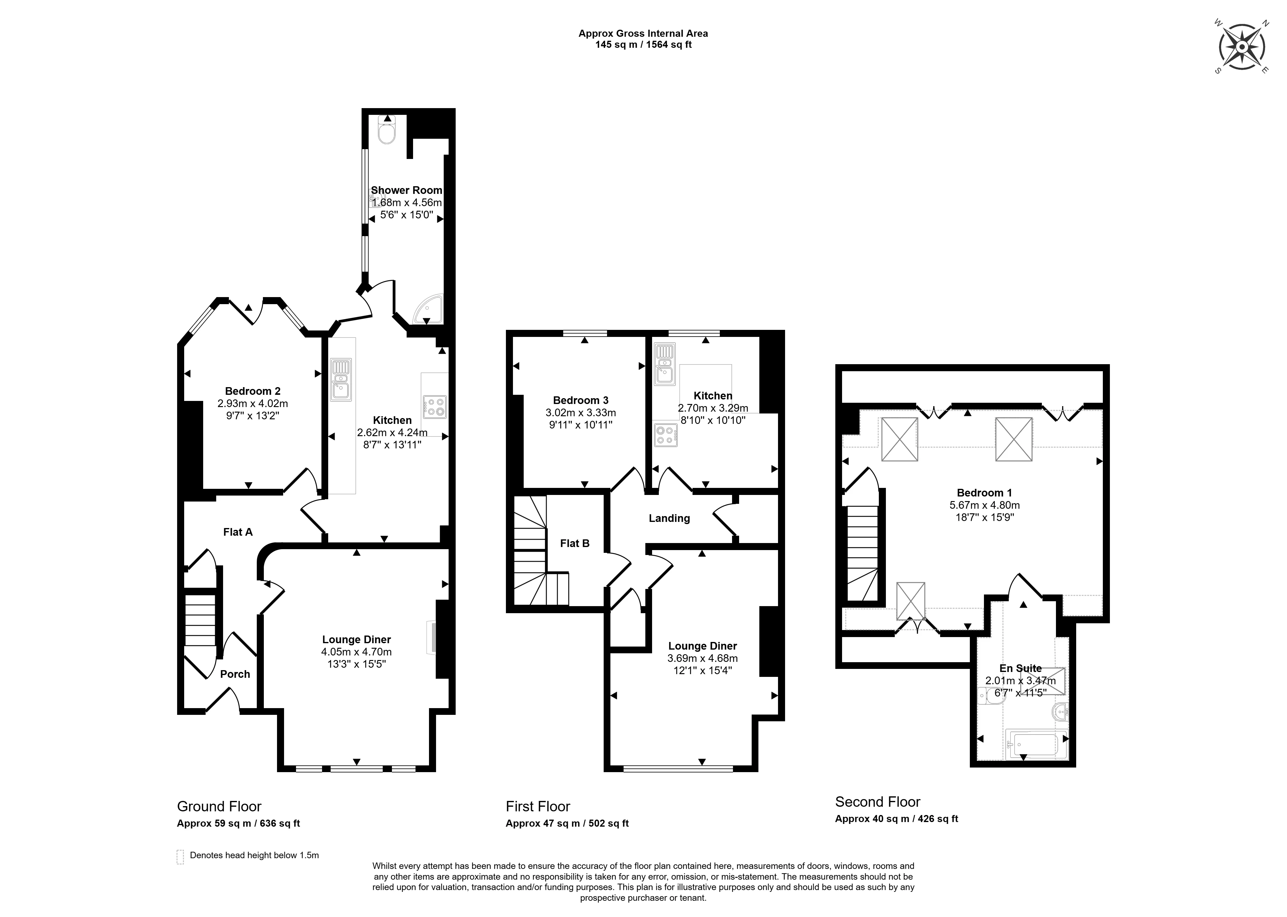
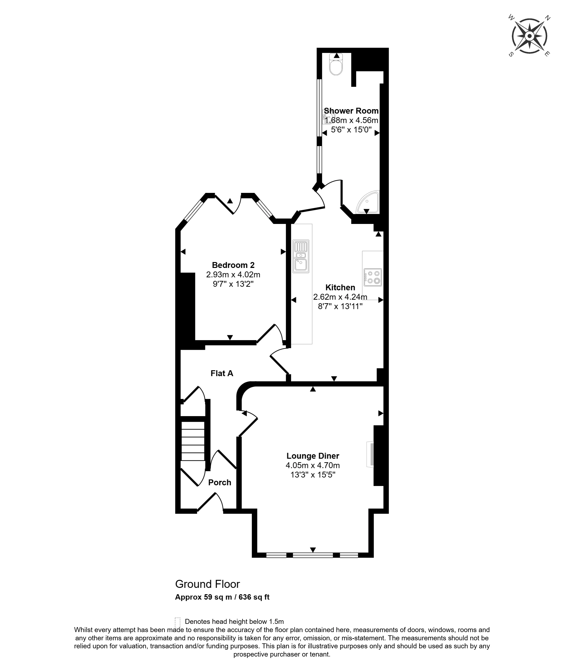
A mid-terrace property arranged as two self-contained flats. The ground floor flat offers one bedroom and use of the rear garden, while the first floor flat comprises one bedroom plus a loft room which has previously been used as bedroom. Both require modernisation, presenting scope for improvement or investment. Ideally situated close to the shops, cafes, and transport links of Palmers Green. Offered with vacant possession. EPC rating - C. Ground Floor Lounge/Diner - 4.05m x 4.70m Kitchen - 2.62m x 4.24m Bedroom 2 - 2.93m x 4.02m Shower room -1.68m x 4.56m First Floor Lounge/Diner - 3.69m x 4.68m Kitchen - 2.70m x 3.29m Bedroom 3 - 3.02m x 3.33m Second Floor Room - 5.67m x 4.80m En Suite - 2.01m x 3.47m

Location
Flat A & Flat B, 109 Tottenhall Road, Palmers Green, London N13 6JA
More Information
Freehold
Tottenhall Road
Terraced House
Planing Authority
Enfield LPA
Sold Price History
16 Dec 2005Sold£248,000
05 Feb 2007Sold£325,000
02 Sep 2025Withdrawn Lot Savills plc£400,000

Interested in this lot?

GO TO THIS LOT

More Listings from this Auctioneer

Other listings nearby