Back to properties

DEVELOPMENT WITH PLANNING | EASTON, 5 bedroom, Land - Building Plot - 34123177

250 Stapleton Road, Easton, BS5 0NT

£250,000
Land
About this Property
2025-10-15
250000
Traditional
Land
Description

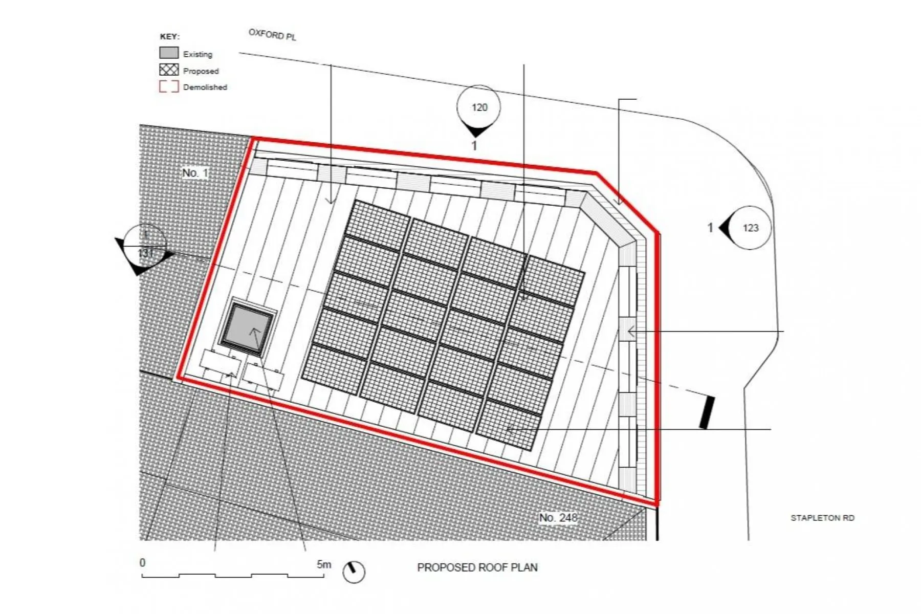
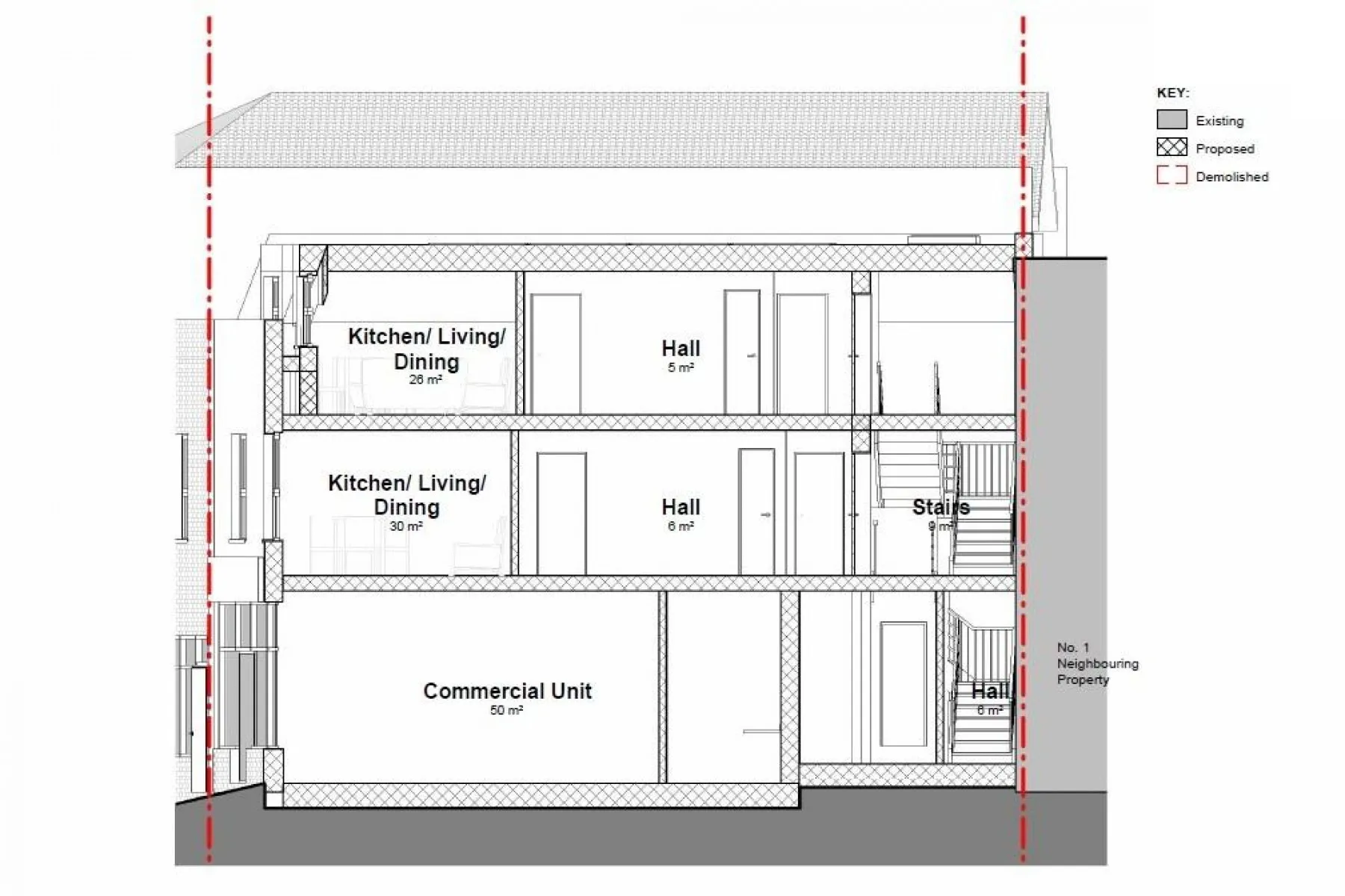
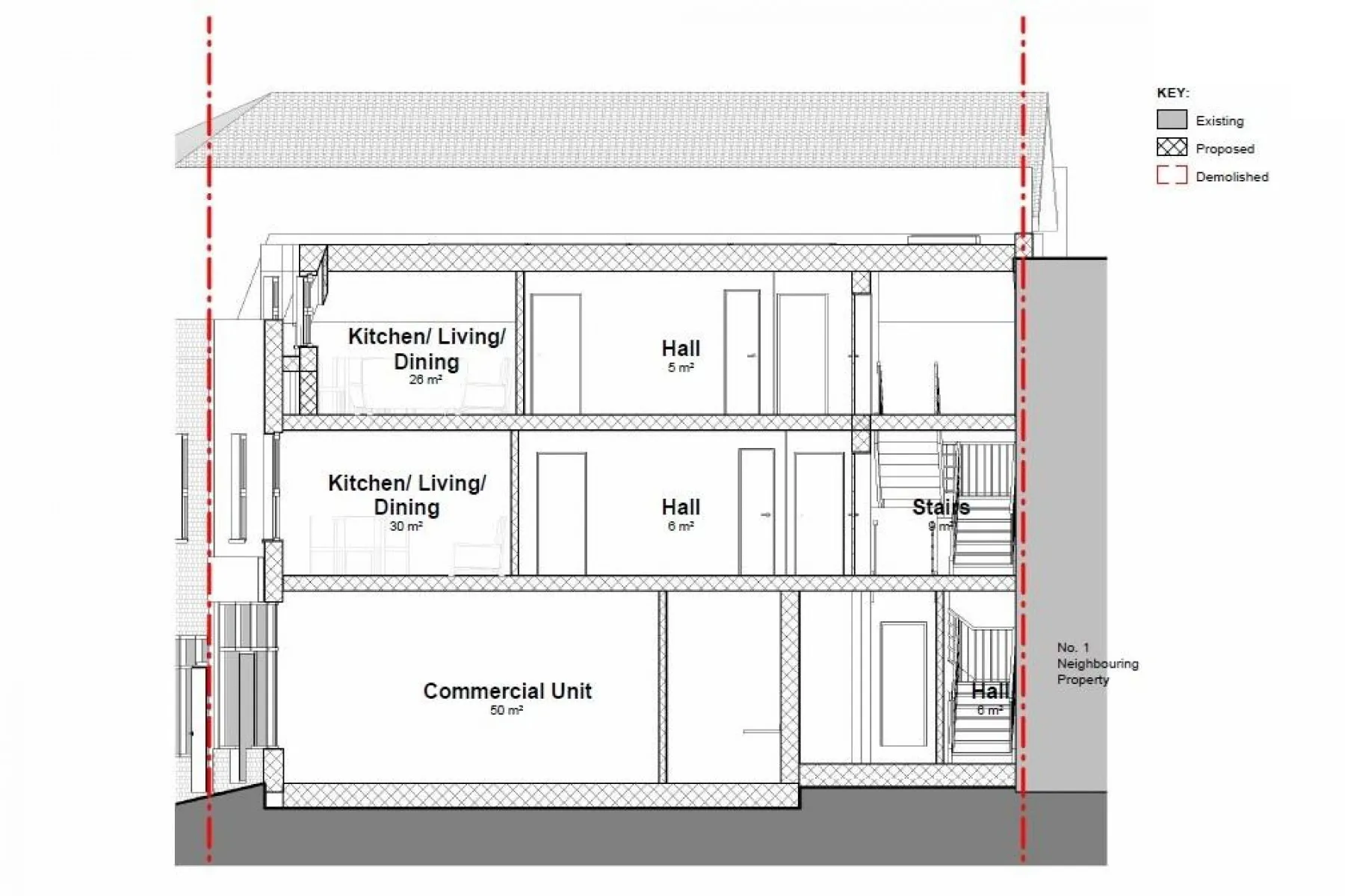
ADDRESS | 250 Stapleton Road, Easton, Bristol BS5 0NT Lot Number 35 *** PLEASE NOTE NEW AUCTION START TIME - NOW 12:00 *** The Live Online Auction is on Wednesday 15th October 2025 @ 12:00 Noon Registration Deadline is on Friday 10th October 2025 @ 16:00 The Auction will be streamed LIVE ONLINE via the Hollis Morgan website & you can chose to bid by telephone, proxy or via your computer. Registration is a simple online process – please visit the Hollis Morgan auction website and click “REGISTER TO BID” A Freehold commercial property occupying a prime corner position on this popular High Street close to the City Centre. Sold with vacant possession. Tenure - Freehold EPC - B MIXED USE DEVELOPMENT OPPORTUNITY Planning was granted ( 23/02560/F ) in February 2025 to create a mixed use scheme comprising of a self contained commercial unit with corner trading position and two self contained flats on the upper floors with independent access from Oxford Place. Please refer to independent rental appraisal. PROPOSED SCHEDULE OF ACCOMODATION Ground Floor Retail Unit | 538 Sq Ft | Kitchen | Bathroom | Corner Trading Position Entrance to Flats Bike & Bin Stores First Floor - 3 Bed Flat Self Contained Flat | 742 Sq Ft | Open Plan Kitchen Diner Living Space | Bedroom 1 | Bedroom 2 | Bedroom 3 | Bathroom Second Floor - 2 Bed Flat Self Contained Flat | 678 Sq Ft | Open Plan Kitchen Diner Living Space | Bedroom 1 | En Suite | Bedroom 2 | Bathroom Reference23/02560/F Alternative ReferencePP-12212736 Application ReceivedTue 27 Jun 2023 Application ValidatedTue 11 Jul 2023 Address250 Stapleton Road Easton Bristol BS5 0NT ProposalProposed redevelopment for commercial and residential purposes. The ground floor will be developed for a commercial unit and bin/bike stores, while the first and second floors will be developed as flats. StatusDecided DecisionGRANTED subject to condition(s) Decision Issued DateTue 04 Feb 2025 Full details of the proposed scheme and drawings can be downloaded with the online legal pack. First Floor - 3 Bed Flat Self Contained Flat | 742 Sq Ft | Open Plan Kitchen Diner Living Space | Bedroom 1 | Bedroom 2 | Bedroom 3 | Bathroom £225,000 Second Floor - 2 Bed Flat Self Contained Flat | 678 Sq Ft | Open Plan Kitchen Diner Living Space | Bedroom 1 | En Suite | Bedroom 2 | Bathroom £200,000 For further information on GDV and sales advice please contact the Hollis Morgan Sales Team. What rent can we achieve for you? The Bristol Residential Letting Co. are confident this property would make a good rental investment if brought to a standard suitable for the professional rental market. Danny Dean of The Bristol Residential Letting Co suggests a rent in the region of; 250, Stapleton Road, 3 bed flat – £1600pcm - £1700pcm | 2 bed flat - £1200pcm - £1300pcm If you would like to discuss more detail on the potential for rental, you can call me on 07738766640 or email ([email protected]) for a no obligation discussion. I am always happy to advise investors on maximising their investment. Local Commercial agents Burston Cook have advised the commercial unit would command a rent in the region of £10,000 - £12,000 per annum Please contact Charlotte Bjoroy to discuss in more detail. 0117 934 9977 [email protected] www.burstoncook.co.uk Tim Adams Adams Burrows 0117 970 2240 [email protected] https://www.adams-burrows.co.uk/ EXTENDED COMPLETION Completion is set for 8 weeks or earlier subject to mutual consent. We have been informed by our client’s solicitors that the legal pack for this lot is now complete. Should any last minute addendums occur you will be automatically notified by email. If the vendors have indicated they are willing to consider pre-auction offers, now is the time to submit your offer by completing the pre-auction offer form.

Location
DEVELOPMENT WITH PLANNING | EASTON, 5 bedroom, Land - Building Plot - 34123177
More Information
Freehold
Stapleton Road
Land
Planing Authority
Bristol, City of LPA
Sold Price History
15 Oct 2025Available Lot Hollis Morgan£250,000

Interested in this lot?

GO TO THIS LOT

More Listings from this Auctioneer