Flat 2, Wellington House, Castle Hill Passage, HASTINGS, East Sussex, TN34 1PG

Flat 2, Wellington House, Castle Hill Passage, HASTINGS, East Sussex, TN34 1PG

£65,000
Land
Unsold
About this Property
2025-11-18
Unsold
£65,000
Traditional
Land
Description

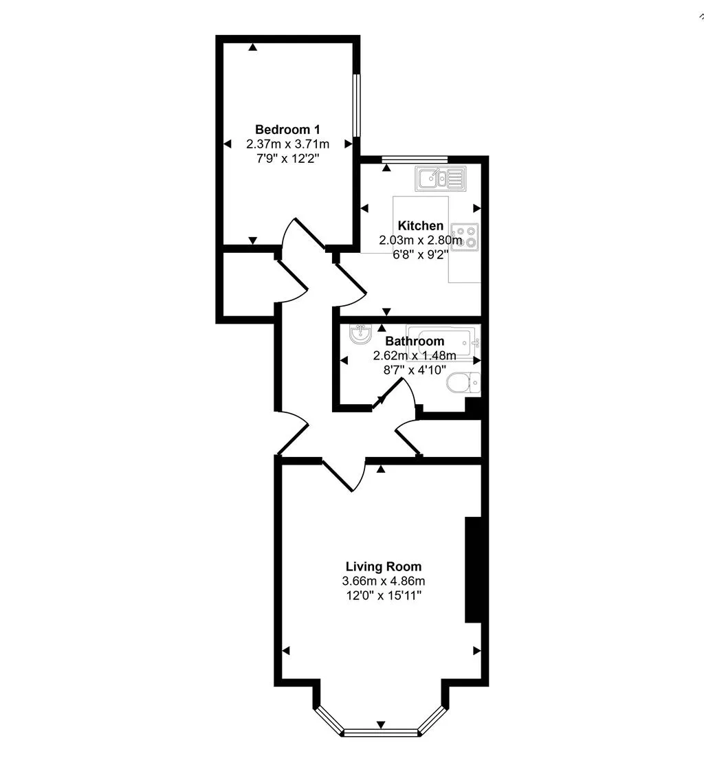
This property is a leasehold ground floor self-contained flat that requires modernisation. It includes one bedroom, a reception room, a kitchen, a bathroom/WC, and an entrance hallway. The flat is located 0.2 miles from the beach and 100 yards from the main shopping mall. The property has an EPC rating of D and falls under Council Tax Band A. It is held on a lease for a term of 99 years from September 29, 1983, with an initial ground rent of £25.00 rising to £75.00 per annum.

Location
Flat 2, Wellington House, Castle Hill Passage, HASTINGS, East Sussex, TN34 1PG
More Information
Leasehold
Castle Hill Passage
Planning Authority
Hastings LPA

Interested in this lot?

GO TO THIS LOT
DISCLAIMER

No Affiliation: PropertyAuctions.io is an independent service and is not affiliated with, endorsed by, or connected to any auction house, auctioneer, or property owner listed on this site.

Information Accuracy: All property information, including auction dates, descriptions, images, and pricing, is provided for informational purposes only and may contain errors or be outdated. We make no guarantee regarding accuracy or completeness.

Third-Party Content: Property images and descriptions are sourced from publicly available information. We do not claim ownership of content that may be copyrighted by auction houses or other parties.

Your Responsibility: You must verify all information directly with the relevant auction house before bidding or making any decisions. PropertyAuctions.io is not liable for any errors, omissions, or losses arising from use of this website. Report Issues: If you spot an error or have copyright concerns, please report it here.

View Full Terms and Conditions

More Listings from this Auctioneer

Other listings nearby