29B Cathnor Road, London, W12

29B Cathnor Road, London, W12

£450,000
Residential
Auction Ended
About this Property
17 December 2025
Auction Ended
£450,000
Traditional
Residential
Description

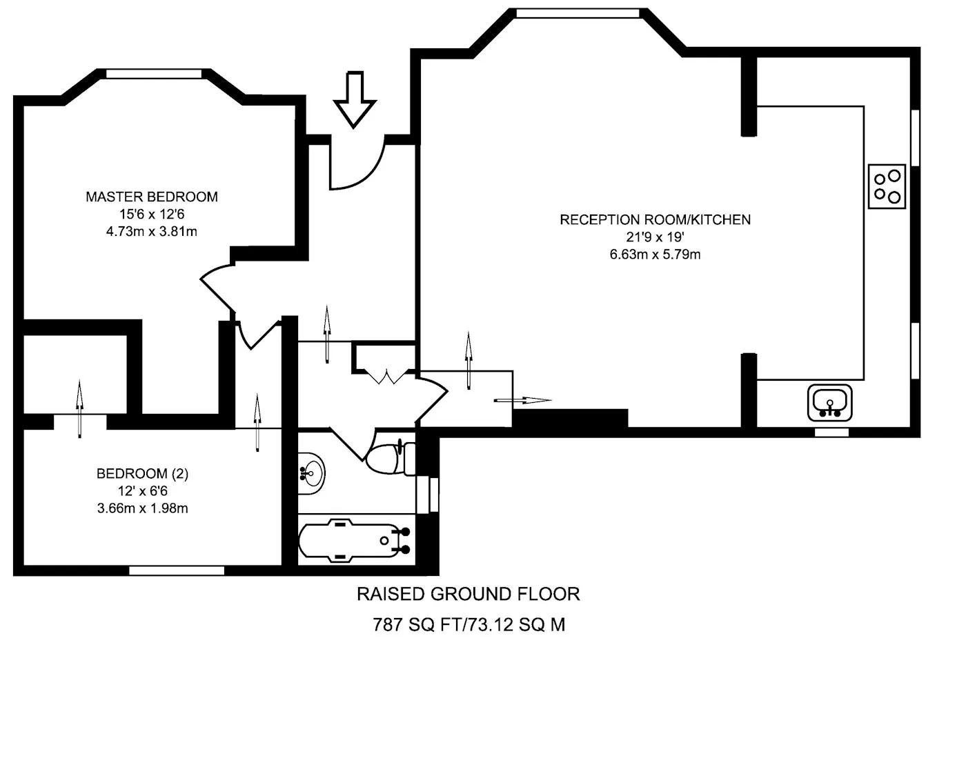
This property is a recently refurbished two-bedroom flat with a gross internal floor area of approximately 787 sq ft (73.11 sq m). It features a large bay-fronted reception room and a well-equipped kitchen. The flat is held on a leasehold expiring in June 2138. It falls under Council Tax Band D and has an EPC Rating of C. The location provides access to local amenities and is within easy reach of transport links.

Location
Map location for 29B Cathnor Road, London, W12
More Information
Leasehold
Cathnor Road
Planning Authority
Hammersmith and Fulham LPA

Interested in this lot?

GO TO THIS LOT

More Listings from this Auctioneer

Other listings nearby

DISCLAIMER

No Affiliation: PropertyAuctions.io is an independent service and is not affiliated with, endorsed by, or connected to any auction house, auctioneer, or property owner listed on this site.

Information Accuracy: All property information, including auction dates, descriptions, images, and pricing, is provided for informational purposes only and may contain errors or be outdated. We make no guarantee regarding accuracy or completeness.

Third-Party Content: Property images and descriptions are sourced from publicly available information. We do not claim ownership of content that may be copyrighted by auction houses or other parties.

Your Responsibility: You must verify all information directly with the relevant auction house before bidding or making any decisions. PropertyAuctions.io is not liable for any errors, omissions, or losses arising from use of this website.

Report Issues: If you spot an error or have copyright concerns, please report it here.

View Full Terms and Conditions