Back to properties

3 bed Terraced

Cronton Road, Liverpool, Merseyside, L15 5BB

£145,000
Residential
About this Property
145000
Modern
Residential
Description

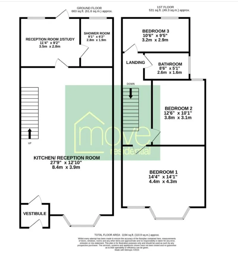
This mid-terrace Victorian house presents an exciting opportunity for those seeking a renovation project. Spanning an impressive 1,206 square feet, the property boasts three well-proportioned bedrooms and two inviting reception rooms. Built in 1900, this home offers a unique canvas for modernisation while preserving its historical charm. The desirable location close to Alerton Road ensures that residents can enjoy the benefits of a friendly community, with local amenities and transport links conveniently close at hand. This property is perfectly priced for those looking to invest in a home that they can truly make their own. Whether you envision a contemporary family abode or a stylish retreat, the potential here is boundless. With a little imagination and effort, this house can be transformed into a stunning residence that reflects your personal style. Auctioneer comments This property is for sale by the Modern Method of Auction, meaning the buyer and seller are to Complete within 56 days (the "Reservation Period"). Interested parties personal data will be shared with the Auctioneer (iamsold). If considering buying with a mortgage, inspect and consider the property carefully with your lender before bidding. The buyer signs a Reservation Agreement and makes payment of a non-refundable Reservation Fee of 4.5% of the purchase price including VAT, subject to a minimum of £6,600.00 including VAT. This is paid to reserve the property to the buyer during the Reservation Period and is paid in addition to the purchase price. This is considered within calculations for Stamp Duty Land Tax. Services may be recommended by the Agent or Auctioneer in which they will receive payment from the service provider if the service is taken. Any payment that will be received by the Agent or Auctioneer will be confirmed to you in writing before services are taken. Services are optional.

Location
3 bed Terraced
More Information
Freehold
Cronton Road
house
Planing Authority
Liverpool LPA

Interested in this lot?

GO TO THIS LOT

More Listings from this Auctioneer

Other listings nearby