Land adjacent to, 32 Tennyson Avenue, Southend-on-Sea, Essex, SS2 5HD

Land adjacent to, 32 Tennyson Avenue, Southend-on-Sea, Essex, SS2 5HD

Residential
Sold
About this Property
08 February 2017
Sold
Modern
Residential
£93,000
Description

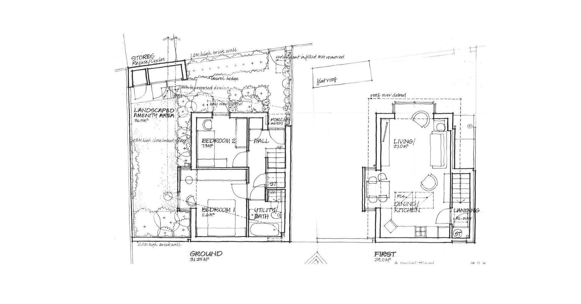
The property is a plot of land with planning permission granted to construct a detached two-storey two-bedroom dwelling. The proposed layout includes ground floor bedrooms and a bathroom, with an open plan kitchen and living area on the first floor. There is also a garden area. The tenure is freehold.

Location
More Information
Freehold
Planning Authority
Southend-on-Sea LPA

Interested in this lot?

GO TO THIS LOT

Other listings nearby

DISCLAIMER

No Affiliation: PropertyAuctions.io is an independent service and is not affiliated with, endorsed by, or connected to any auction house, auctioneer, or property owner listed on this site.

Information Accuracy: All property information, including auction dates, descriptions, images, and pricing, is provided for informational purposes only and may contain errors or be outdated. We make no guarantee regarding accuracy or completeness.

Third-Party Content: Property images and descriptions are sourced from publicly available information. We do not claim ownership of content that may be copyrighted by auction houses or other parties.

Your Responsibility: You must verify all information directly with the relevant auction house before bidding or making any decisions. PropertyAuctions.io is not liable for any errors, omissions, or losses arising from use of this website.

Report Issues: If you spot an error or have copyright concerns, please report it here.

View Full Terms and Conditions