27 St. Thomas Road, London N4 2QH

27 St. Thomas Road, London N4 2QH

£875,000
Residential
Sold
About this Property
29 January 2026
Sold
£875,000
Traditional
Residential
£1,180,000
Description

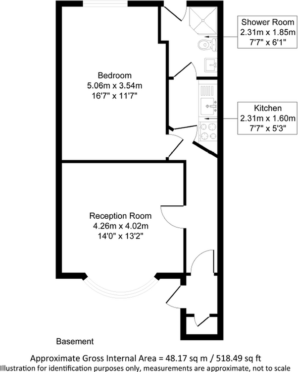
Terraced house with five bedrooms, requiring refurbishment. The property is freehold and currently split over four floors, including a one-bedroom apartment on the lower ground floor and a four-bedroom maisonette on the upper floors. The lower ground floor has a lounge, kitchen, shower room, and its own front and rear doors. The maisonette features a lounge, dining room, kitchen, and additional bedrooms and shower room spread across the first and second floors. The property has a rear garden and is located near Finsbury Park station. EPC rating is D.

Location
Map location for 27 St. Thomas Road, London N4 2QH
More Information
Freehold
Planning Authority
Islington LPA
Address History
20 Apr 1998Sold£167,000
29 Jan 2026Sold Lot BTG Eddisons Property Auctions£1,180,000
29 Jan 2026Sold Lot Pugh & Company Limited£1,180,000
29 Jan 2026Sold Lot BTG Eddisons Property Auctions£1,180,000

Interested in this lot?

GO TO THIS LOT

More Listings from this Auctioneer

Other listings nearby

DISCLAIMER

No Affiliation: PropertyAuctions.io is an independent service and is not affiliated with, endorsed by, or connected to any auction house, auctioneer, or property owner listed on this site.

Information Accuracy: All property information, including auction dates, descriptions, images, and pricing, is provided for informational purposes only and may contain errors or be outdated. We make no guarantee regarding accuracy or completeness.

Third-Party Content: Property images and descriptions are sourced from publicly available information. We do not claim ownership of content that may be copyrighted by auction houses or other parties.

Your Responsibility: You must verify all information directly with the relevant auction house before bidding or making any decisions. PropertyAuctions.io is not liable for any errors, omissions, or losses arising from use of this website.

Report Issues: If you spot an error or have copyright concerns, please report it here.

View Full Terms and Conditions