Back to properties

121, Hollydale Road, LONDON, SE15 2TF

121, Hollydale Road, LONDON, SE15 2TF

£565,000
Residential
About this Property
2025-07-29
565000
Traditional
Residential
Description

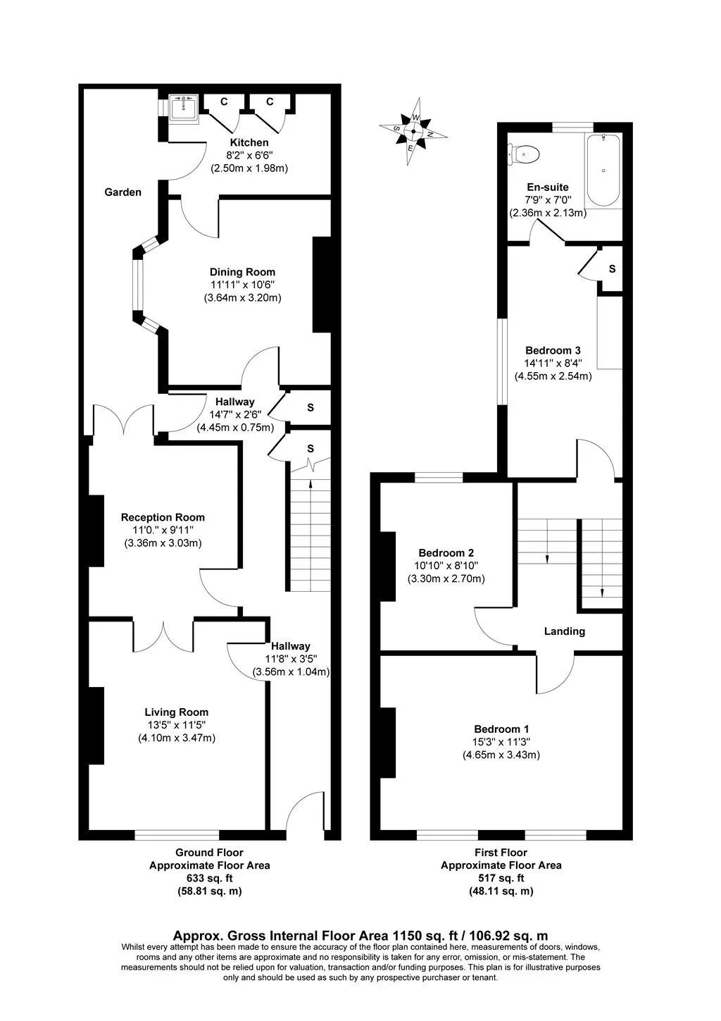
Freehold two floor mid terrace house requiring updating/refurbishment Further potential Full vacant possession Video Tour (Part 1): Video Tour (Part 2): Location: The property is situated on Hollydale Road close to its junction with Brayards Road. Public transport links are very well provided with Nunhead and Queens Road Peckham Railway Stations within close proximity, together with a network of local bus services serving the surrounding vicinity. An extensive range of shopping amenities, bars and restaurants can be found locally, as well as nearby recreational pursuits including Peckham Rye Park & Common, and Telegraph Hill Upper Park. Accommodation: First floor: Three bedrooms, bathroom/WC (off bedroom) Ground floor: Through reception room, dining room, kitchen Outside: Front and rear gardens Potential: The property may be suitable for rear extension – subject to the necessary planning permissions and consents where applicable EPC rating: E Council Tax Band: D To view: 16/7, 18/7, 22/7, 24/7, 28/7 at 12:45pm No booking required - Please arrive at the time stated

Location
121, Hollydale Road, LONDON, SE15 2TF
More Information
Freehold
Hollydale Road
Freehold two floor mid terrace house requiring updating/refurbishment
Planing Authority
Southwark LPA

Interested in this lot?

GO TO THIS LOT

More Listings from this Auctioneer