Hanover House, Montpellier Walk, Cheltenham, Gloucestershire, GL50 1SD

Hanover House, Montpellier Walk, Cheltenham, Gloucestershire, GL50 1SD

£350,000
Residential
Sold
About this Property
23 October 2025
Sold
£350,000
Traditional
Residential
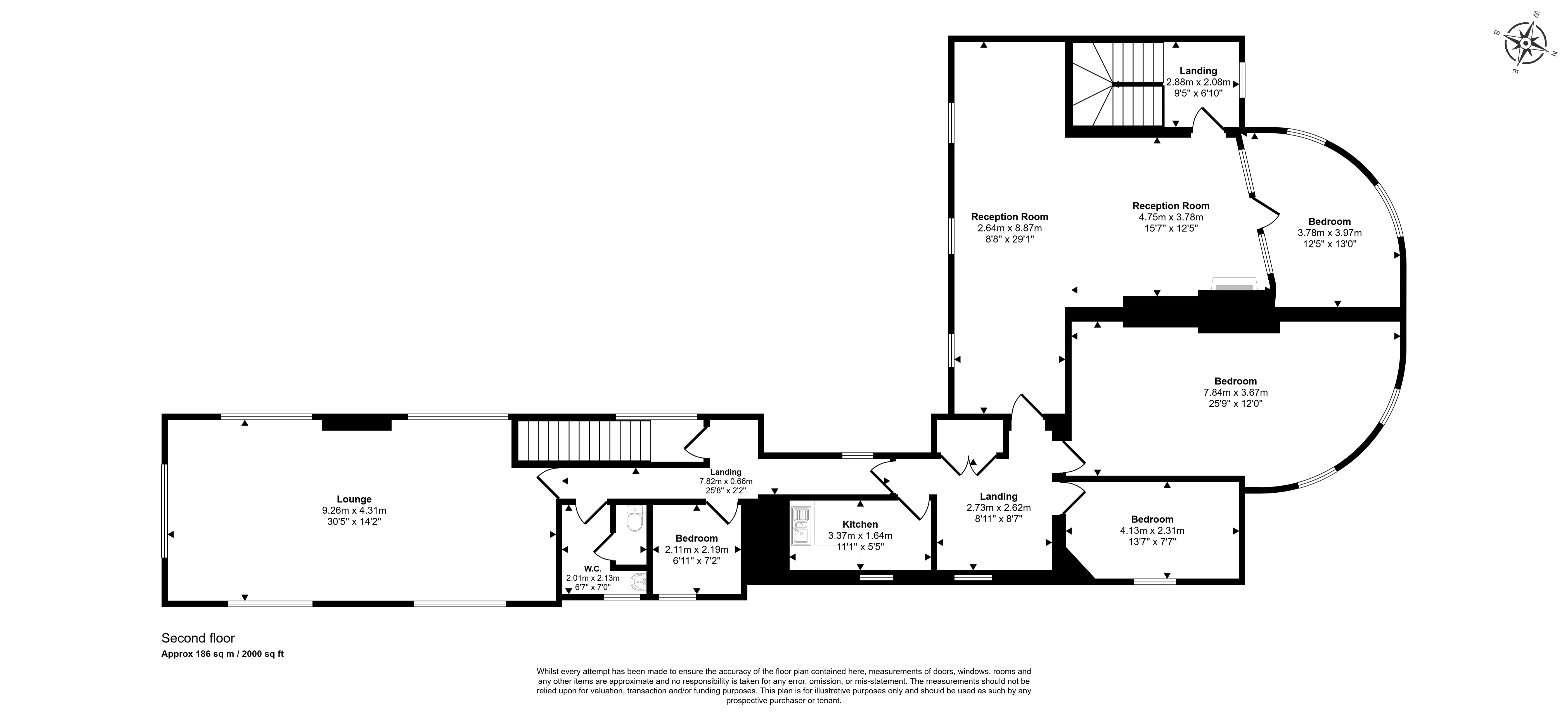
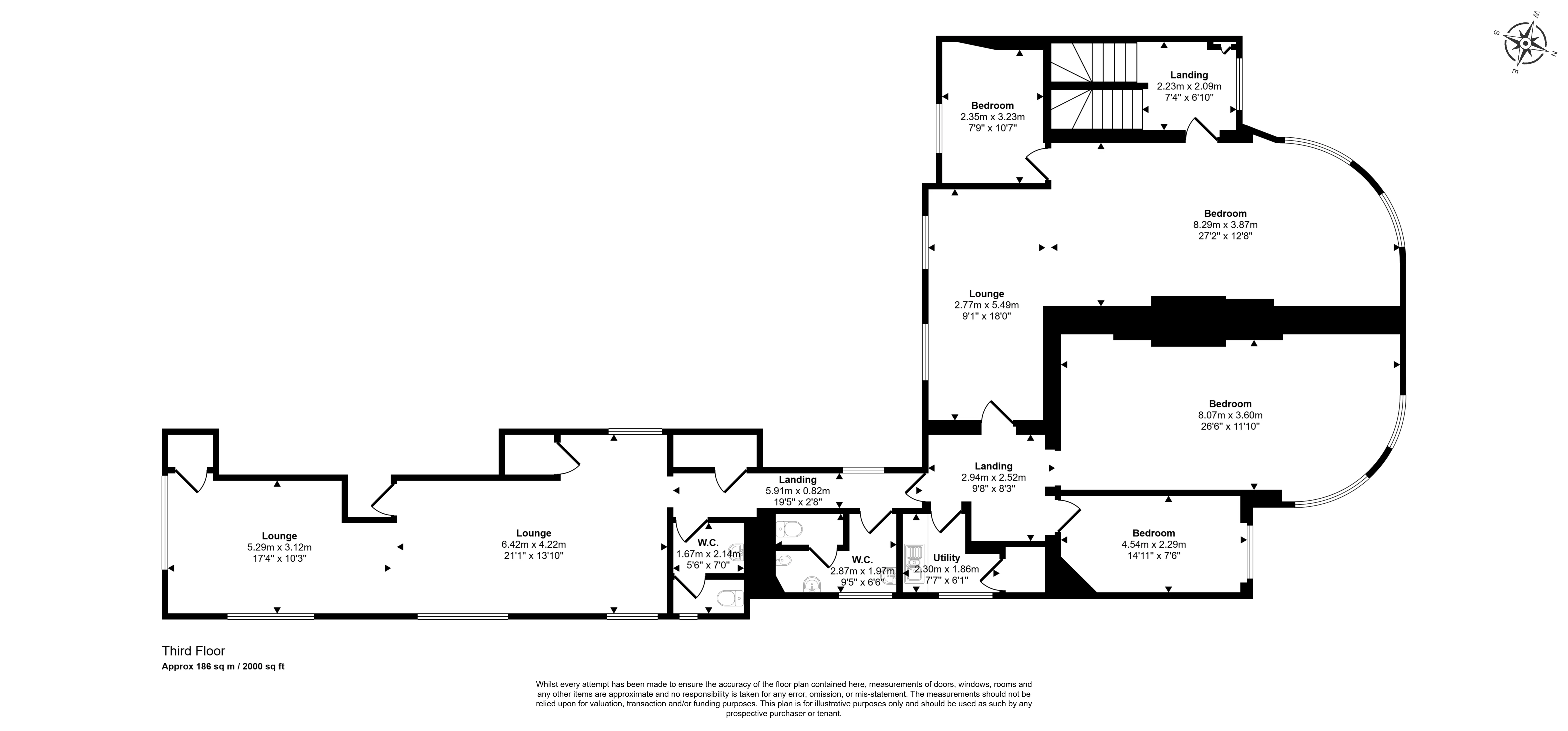
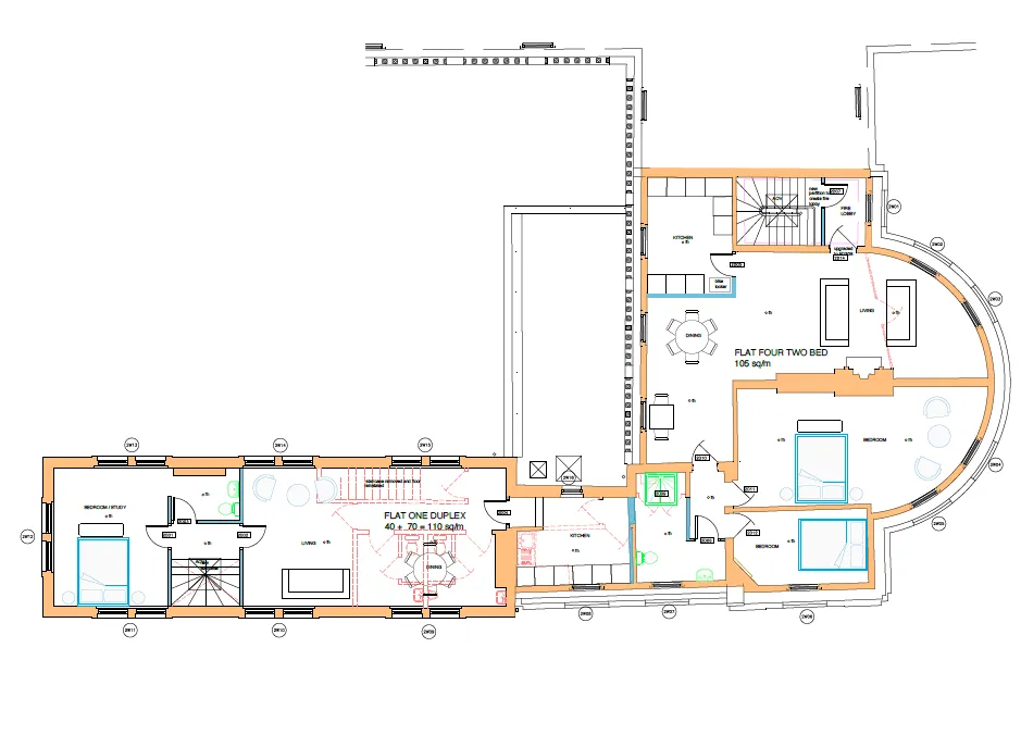
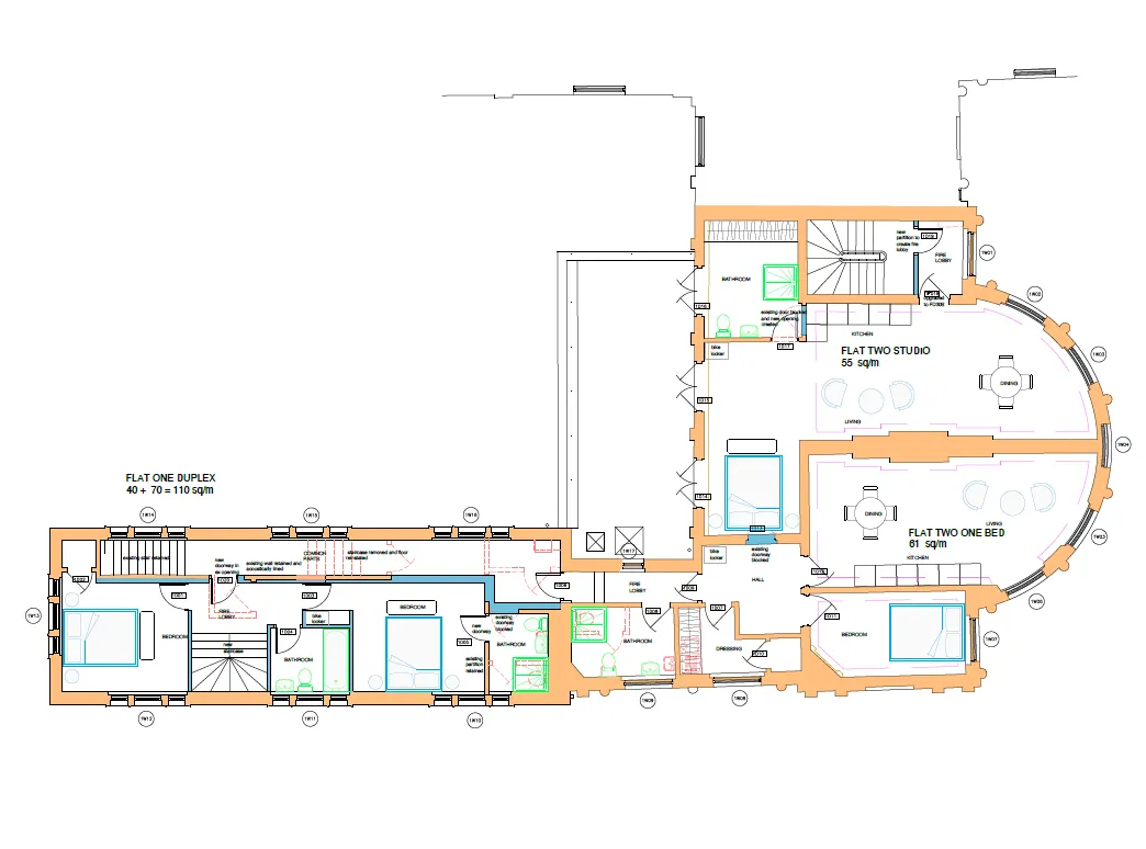
Description

The property is a vacant Grade II listed upper part that was formerly used as office accommodation. It has received planning permission and listed building consent for conversion into four self-contained flats, which will include one studio flat, one one-bedroom flat, and two two-bedroom flats. The gross internal area is approximately 383 square meters (4,122 square feet). The property is leasehold with a new 999-year lease. It is located in Cheltenham, near Montpellier Gardens and various amenities.

Location
More Information
Leasehold
Planning Authority
Cheltenham LPA
Address History
22 Dec 2016Sold£2,090,000
09 Jun 2025Sold£1,350,000
18 Sep 2025Withdrawn Lot Allsop£425,000

Interested in this lot?

GO TO THIS LOT

More Listings from this Auctioneer

Other listings nearby

DISCLAIMER

No Affiliation: PropertyAuctions.io is an independent service and is not affiliated with, endorsed by, or connected to any auction house, auctioneer, or property owner listed on this site.

Information Accuracy: All property information, including auction dates, descriptions, images, and pricing, is provided for informational purposes only and may contain errors or be outdated. We make no guarantee regarding accuracy or completeness.

Third-Party Content: Property images and descriptions are sourced from publicly available information. We do not claim ownership of content that may be copyrighted by auction houses or other parties.

Your Responsibility: You must verify all information directly with the relevant auction house before bidding or making any decisions. PropertyAuctions.io is not liable for any errors, omissions, or losses arising from use of this website.

Report Issues: If you spot an error or have copyright concerns, please report it here.

View Full Terms and Conditions