Back to properties

Property for Auction in London - Land Adjacent to 5 Woolston Road, Netley Abbey, Southampton, Hampshire

Land Adjacent to 5 Woolston Road, Netley Abbey, Southampton, Hampshire, SO31 5FR

£10,000
Land
About this Property
2025-10-17
10000
Traditional
Land
Description

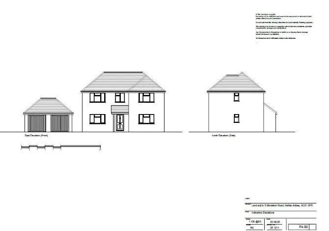
A Plot of Land Measuring Approximately 0.22 Acres / 894 sq m (9,626 sq ft) The lot comprises a plot of land measuring approximately 0.22 Acres / 894 sq m (9,626 sq ft). Note Plans have been drawn up for the erection of a dwelling. No planning application has been submitted for this scheme. Drawings of the proposed plans are available for inspection upon request. Auction House London make no representations or warranties with regard to this scheme and/or the validity of the aforementioned plans. Buyers must rely on their own enquiries with regard to any development potential, permissions required and any previous planning history in respect of this site. Tenure Freehold Location The land is situated on a residential road close to local shops and amenities. The open spaces of Netley Recreational Ground are within easy reach. Transport links are provided by Netley rail station. The site area depicted within the plan in the auction particulars is for indicative purposes only. Additionally, any measurements stated may not be exact. Some or all of the plot may comprise adopted highway land and if the site has trees, there may be Tree Preservation Orders in place. Buyers should rely on their own enquiries with regard to precise measurements, any consents or rights over the land and any possible development potential or alternative uses for this site. Services Interested parties are requested to make their own enquiries to the relevant authorities as to the availability of services. Important Notice to Prospective Buyers: We draw your attention to the Special Conditions of Sale within the Legal Pack, referring to other charges in addition to the purchase price which may become payable. Such costs may include Search Fees, reimbursement of Sellers costs and Legal Fees, and Transfer Fees amongst others. Additional Fees Administration Charge - Purchasers will be required to pay an administration fee of £1,500 inc VAT Disbursements - Please see the legal pack for any disbursements listed that may become payable by the purchaser on completion.

Location
Property for Auction in London - Land Adjacent to 5 Woolston Road, Netley Abbey, Southampton, Hampshire
More Information
Freehold
Woolston Road
Land
Planing Authority
Eastleigh LPA
Sold Price History
10 May 2002Sold£160,000
19 Aug 2016Sold£502,500

Interested in this lot?

GO TO THIS LOT

More Listings from this Auctioneer

Other listings nearby