Back to properties

1178 London Road, Alvaston, Derby, Derbyshire, DE24 8QG

1178 London Road, Alvaston, Derby, Derbyshire, DE24 8QG

£110,000
Mixed Use
About this Property
2025-09-12
Sold
110000
Traditional
Mixed Use
Description

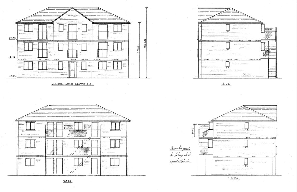
The property is a cleared plot of land that was formerly the site of a carpet shop. It has previously been considered for the development of 18 apartments, but planning was refused in 2019 due to design concerns regarding overlooking neighboring properties. The land presents potential for various development schemes, including residential and mixed-use options. The site is located in a prime and accessible area.

Location
1178 London Road, Alvaston, Derby, Derbyshire, DE24 8QG
More Information
Not Specified
London Road
Planning Authority
Derby LPA
Property History
24 Nov 1995Sold£35,000
29 Oct 2010Sold£150,000

Interested in this lot?

GO TO THIS LOT
DISCLAIMER

No Affiliation: PropertyAuctions.io is an independent service and is not affiliated with, endorsed by, or connected to any auction house, auctioneer, or property owner listed on this site.

Information Accuracy: All property information, including auction dates, descriptions, images, and pricing, is provided for informational purposes only and may contain errors or be outdated. We make no guarantee regarding accuracy or completeness.

Third-Party Content: Property images and descriptions are sourced from publicly available information. We do not claim ownership of content that may be copyrighted by auction houses or other parties.

Your Responsibility: You must verify all information directly with the relevant auction house before bidding or making any decisions. PropertyAuctions.io is not liable for any errors, omissions, or losses arising from use of this website. Report Issues: If you spot an error or have copyright concerns, please report it here.

View Full Terms and Conditions

More Listings from this Auctioneer

Other listings nearby