Douglas Allen Auctions is a trusted property auction house serving Essex and East London. With years of expertise, they offer a fast, transparent, and secure way to buy and sell properties. Their auctions attract a wide range of buyers, ensuring competitive bidding and the best possible results for sellers. Whether you're an investor, homeowner, or looking for your next project, Douglas Allen provides expert guidance throughout the auction process.
Read more Read more3 bed Chalet
Monkhams Avenue, WOODFORD GREEN, Essex, IG8 0ER
About this Property
Description
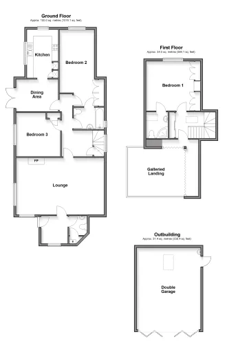
Originally the laundry house of the Monkhams Estate this charming chalet bungalow is an absolute jewel in the crown of Woodford. It is deceptively spacious and is only a short distance to the Central Line Station and has a GARAGE and off street PARKING. Being sold with no onward chain! Auctioneer comments This property is for sale by the Modern Method of Auction, meaning the buyer and seller are to Complete within 56 days (the "Reservation Period"). Interested parties personal data will be shared with the Auctioneer (iamsold). If considering buying with a mortgage, inspect and consider the property carefully with your lender before bidding. A Buyer Information Pack is provided. The winning bidder will pay £349.00 including VAT for this pack which you must view before bidding. The buyer signs a Reservation Agreement and makes payment of a non-refundable Reservation Fee of 4.2% of the purchase price including VAT, subject to a minimum of £6,000.00 including VAT. This is paid to reserve the property to the buyer during the Reservation Period and is paid in addition to the purchase price. This is considered within calculations for Stamp Duty Land Tax. Services may be recommended by the Agent or Auctioneer in which they will receive payment from the service provider if the service is taken. Payment varies but will be no more than £450.00. These services are optional.










































