Whitehouse Farm Barns, Whitehouse Farm Lane, Flixton, Suffolk, NR32 5PG

Whitehouse Farm Barns, Whitehouse Farm Lane, Flixton, Suffolk, NR32 5PG

£325,000
Land
Unsold
About this Property
15 April 2026
15 April 2026
Unsold
£325,000
Traditional
Land
Description

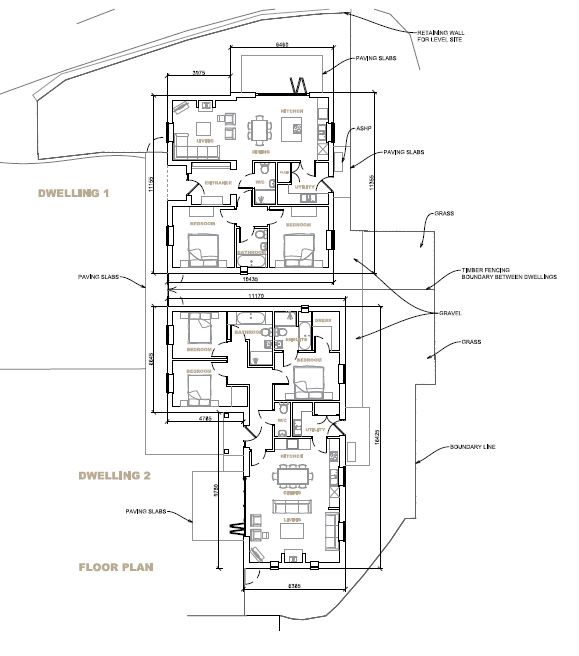
A development site extending to approximately 1.65 acres, located in a rural area at the end of a no-through road in Flixton, Suffolk, approximately 4.3 miles north-west of Lowestoft. The site has full planning permission for the creation of three new dwellings totaling 556 sqm (5,977 sq ft), consisting of a semi-detached two-bedroom house (1,064 sq ft), a semi-detached three-bedroom house (1,258 sq ft), and a detached five-bedroom barn conversion (3,655 sq ft). Mains water and electricity are connected to the site. The purchaser will need to install submeters for each dwelling prior to construction. The maintenance of the access road will be shared among the dwellings once completed. The property is offered with vacant possession upon completion.

Location
Map location for Whitehouse Farm Barns, Whitehouse Farm Lane, Flixton, Suffolk, NR32 5PG
More Information
Planning Authority
East Suffolk LPA

Interested in this lot?

GO TO THIS LOT

More Listings from this Auctioneer

Other listings nearby

DISCLAIMER

No Affiliation: PropertyAuctions.io is an independent service and is not affiliated with, endorsed by, or connected to any auction house, auctioneer, or property owner listed on this site.

Information Accuracy: All property information, including auction dates, descriptions, images, and pricing, is provided for informational purposes only and may contain errors or be outdated. We make no guarantee regarding accuracy or completeness.

Third-Party Content: Property images and descriptions are sourced from publicly available information. We do not claim ownership of content that may be copyrighted by auction houses or other parties.

Your Responsibility: You must verify all information directly with the relevant auction house before bidding or making any decisions. PropertyAuctions.io is not liable for any errors, omissions, or losses arising from use of this website.

Report Issues: If you spot an error or have copyright concerns, please report it here.

View Full Terms and Conditions