Back to properties

2 Bedroom End Terrace in Derbyshire

Alvenor Street, Derbyshire, Ilkeston, DE7 5LR

£25,000
Residential
About this Property
2025-10-30
25000
Traditional
Residential
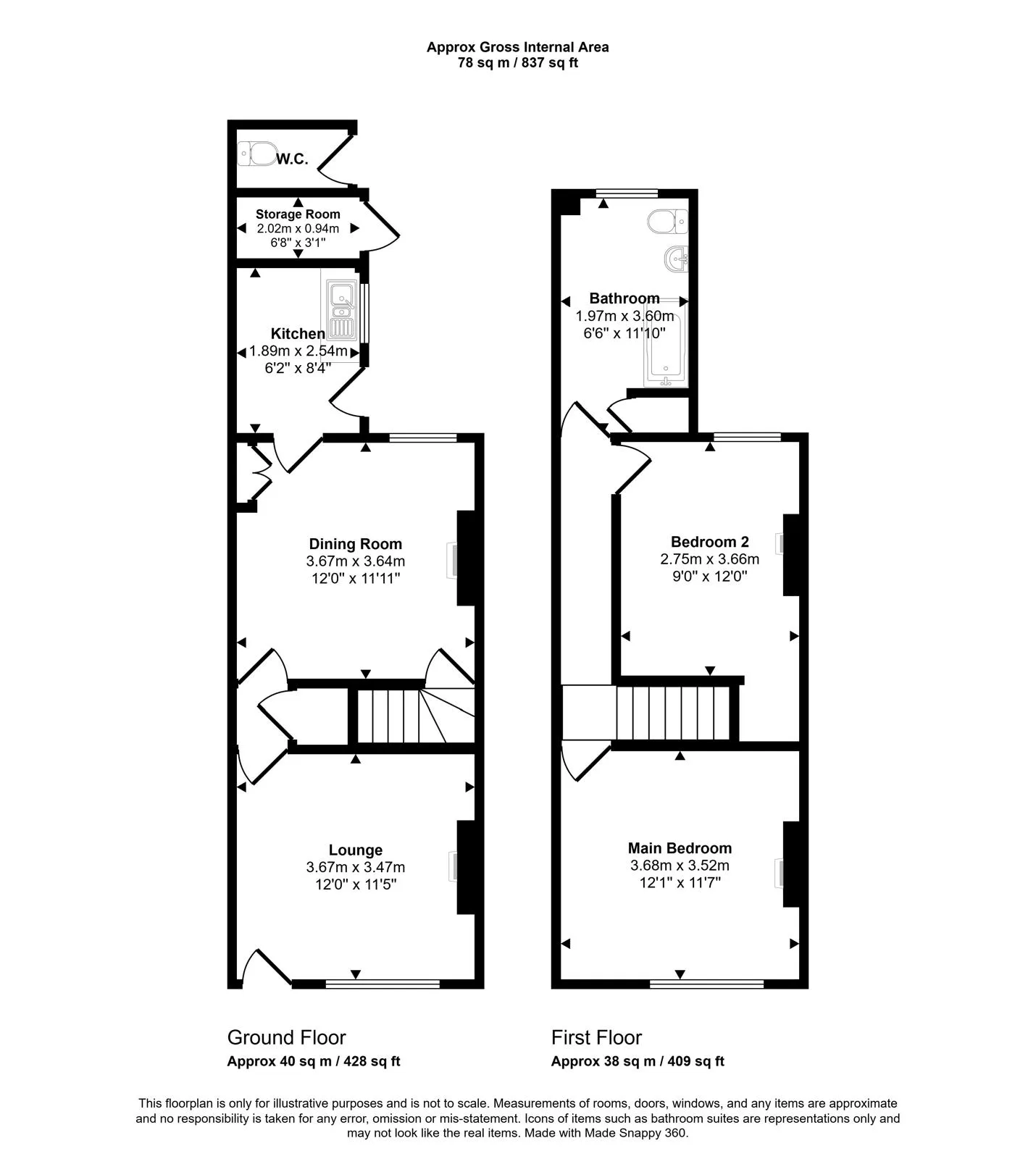
Description

A vacant freehold two bedroom property situated in the residential area of Derbyshire. The property has a lounge, dining room, kitchen, two bedrooms and an upstairs bathroom. Externally the property benefits from a rear garden and on road parking. The house is currently in need of minor refurbishment and is surrounded by well presented properties on a residential road, having huge upward potential for someone looking to add value. The property could be suitable for a multitude of possible extensions to the rear. (Subject to Planning). Derbyshire offers a blend of charming countryside and historical character. Nestled in the heart of England, it features the stunning Peak District National Park, picturesque villages, and rolling hills. Residents enjoy outdoor activities like hiking and cycling, alongside access to vibrant market towns such as Bakewell and Matlock. With a slower pace of life, a strong sense of community, and rich heritage, Derbyshire provides a peaceful yet engaging lifestyle. Block viewings are available on this property, ensure you've confirmed your attendance before arriving.

Location
2 Bedroom End Terrace in Derbyshire
More Information
Freehold
Alvenor Street
House
Planing Authority
Erewash LPA

Interested in this lot?

GO TO THIS LOT

More Listings from this Auctioneer

Other listings nearby