Brown&Co is a leading provider of agency, professional, and consultancy services in rural, commercial, and residential property, agriculture, and the environment. Established in 1993, the firm combines specialist expertise with local market knowledge to deliver exceptional results. With a commitment to strong client relationships, Brown&Co offers tailored solutions for both corporate and private clients across the UK and internationally.
Read more Read moreTimberhill, Palmers Yard, Timberhill, Norwich, Norfolk, NR1 3JZ - Online Auctions
17 Timberhill, together with Flats 1 & 2 Palmers Yard, Timberhill, Norwich, Norfolk, NR1 3JZ
About this Property
Description
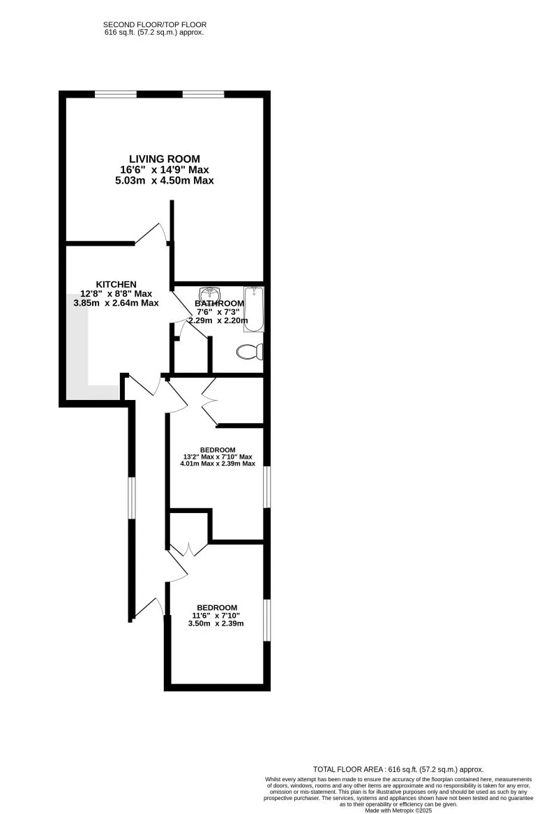
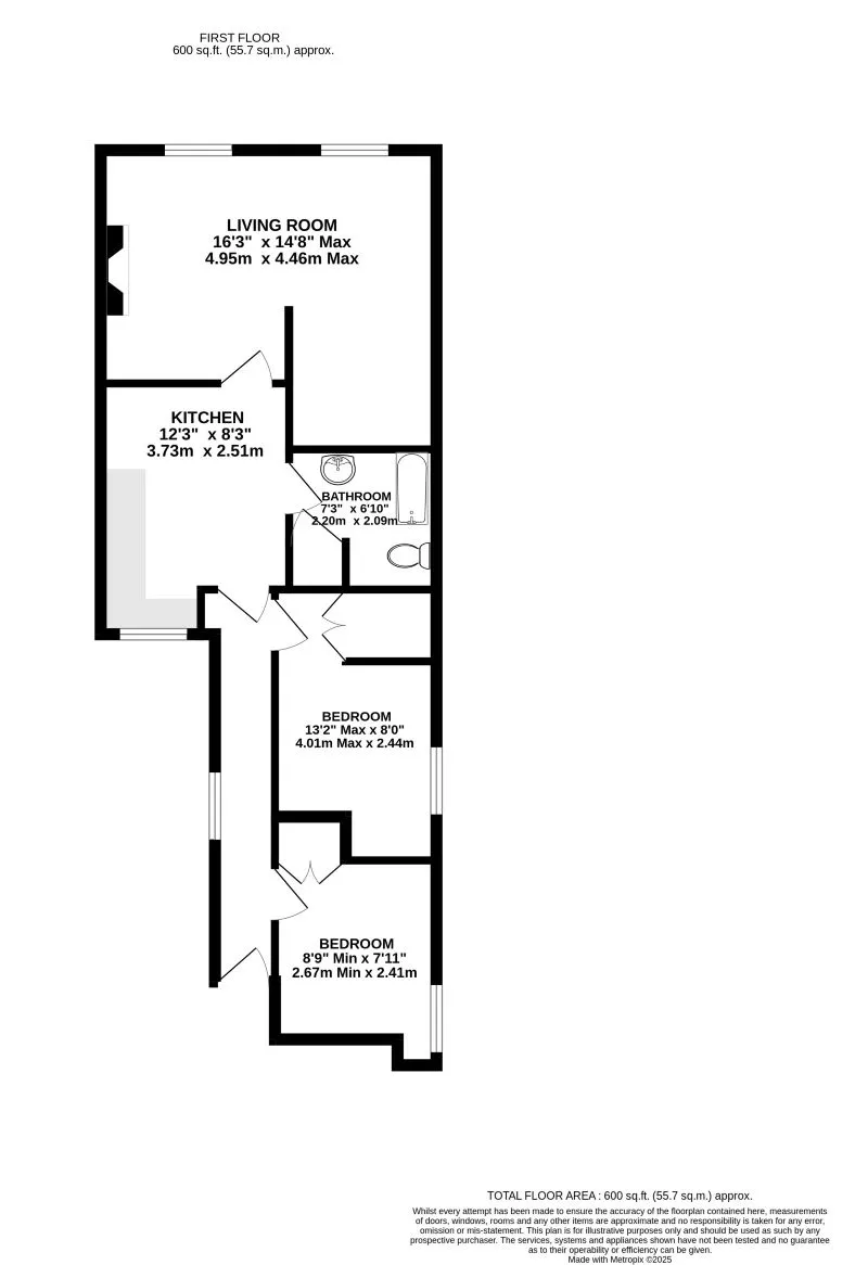
No. 17 Timberhill and Flats 1 & 2 Palmers Yard, Norwich form a single, three storey, mid-terraced building probably dating back from the 19th Century, with the rear part being converted into two self-contained flats. The building is of traditional construction with a pitched main roof, with the pizzeria being approached at the front or via the rear courtyard and a side door. The two flats are approached from the rear courtyard opposite no. 3 Palmers Yard. No. 17 Timberhill amounts to 724 sq.ft. comprising 344 sq.ft. Zone A and 67 sq.ft. Zone B, with kitchen, food preparation area, freezer room and store and let on a 9 year lease from July 2024 at a current rent of £16,750 per annum under the Landlord and Tenant 1954 Act. Details relating to this investment and the terms of the lease will be available within the auction legal pack. No. 1 Palmers Yard is approached via a communal entrance hall with staircase to the first floor. The accommodation comprises lounge/dining area, kitchen, two bedrooms and internal bathroom. Currently let under the terms of an assured shorthold tenancy at a rent of £895 per calendar month - details will be found within the auction legal pack. No. 2 Palmers Yard is approached via a communal entrance hall with staircase to the second floor. The accommodation comprises landing, lounge/dining area, kitchen, 2 bedrooms and internal bathroom. Currently let under the terms of an assured shorthold tenancy at a rent of £860 per calendar month - details will be found within the auction legal pack. Historical Note: The sale of the property here in Timberhill brings to an end the ownership by this Valori family going back over 100 years. Six of the Valori brothers came over to Norwich from Italy between the end of the 19th Century to 1904 and they established businesses and themselves as part of the Norwich community in a variety of ways. After the First World War Armando and Arturo Valori worked together and in 1946 bought 12 Timberhill selling their famous fish and chips. The family bought this property in the early 1960’s and it has remained theirs ever since. Prospective purchasers will be interested in the long association one family has had with this part of Norwich. Solicitor: Sprake & Kingsley (Attn John Williams), 16 Broad Street, Bungay, NR35 1EN. Tel 01986 892721