25, Camperdown, GREAT YARMOUTH, Norfolk, NR30 3JB

25, Camperdown, GREAT YARMOUTH, Norfolk, NR30 3JB

£180,000
Residential
Withdrawn
About this Property
21 May 2024
Withdrawn
£180,000
Traditional
Residential
Description

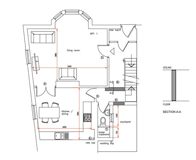
This property is a Grade 2 listed end terrace building. Planning permission has been granted to convert it into three holiday lets. It is located in a popular area of Great Yarmouth, within walking distance to the sea front and town centre. The property is freehold and has an EPC rating that is exempt from requirements. Council tax band is A.

Location
Map location for 25, Camperdown, GREAT YARMOUTH, Norfolk, NR30 3JB
More Information
Freehold
Planning Authority
Great Yarmouth LPA
Address History
11 Oct 2002Sold£84,950
19 Dec 2023Withdrawn Lot Barnard Marcus Auctions£190,000
06 Feb 2024Withdrawn Lot Barnard Marcus Auctions£190,000
12 Mar 2024Withdrawn Lot Barnard Marcus Auctions£180,000

Interested in this lot?

GO TO THIS LOT

More Listings from this Auctioneer

Other listings nearby

DISCLAIMER

No Affiliation: PropertyAuctions.io is an independent service and is not affiliated with, endorsed by, or connected to any auction house, auctioneer, or property owner listed on this site.

Information Accuracy: All property information, including auction dates, descriptions, images, and pricing, is provided for informational purposes only and may contain errors or be outdated. We make no guarantee regarding accuracy or completeness.

Third-Party Content: Property images and descriptions are sourced from publicly available information. We do not claim ownership of content that may be copyrighted by auction houses or other parties.

Your Responsibility: You must verify all information directly with the relevant auction house before bidding or making any decisions. PropertyAuctions.io is not liable for any errors, omissions, or losses arising from use of this website.

Report Issues: If you spot an error or have copyright concerns, please report it here.

View Full Terms and Conditions