66 Gorse Farm Road, Great Barr, Birmingham, B43 5LR

66 Gorse Farm Road, Great Barr, Birmingham, B43 5LR

£89,000
Residential
Sold
About this Property
05 February 2026
Sold
£89,000
Traditional
Residential
£175,000
Description

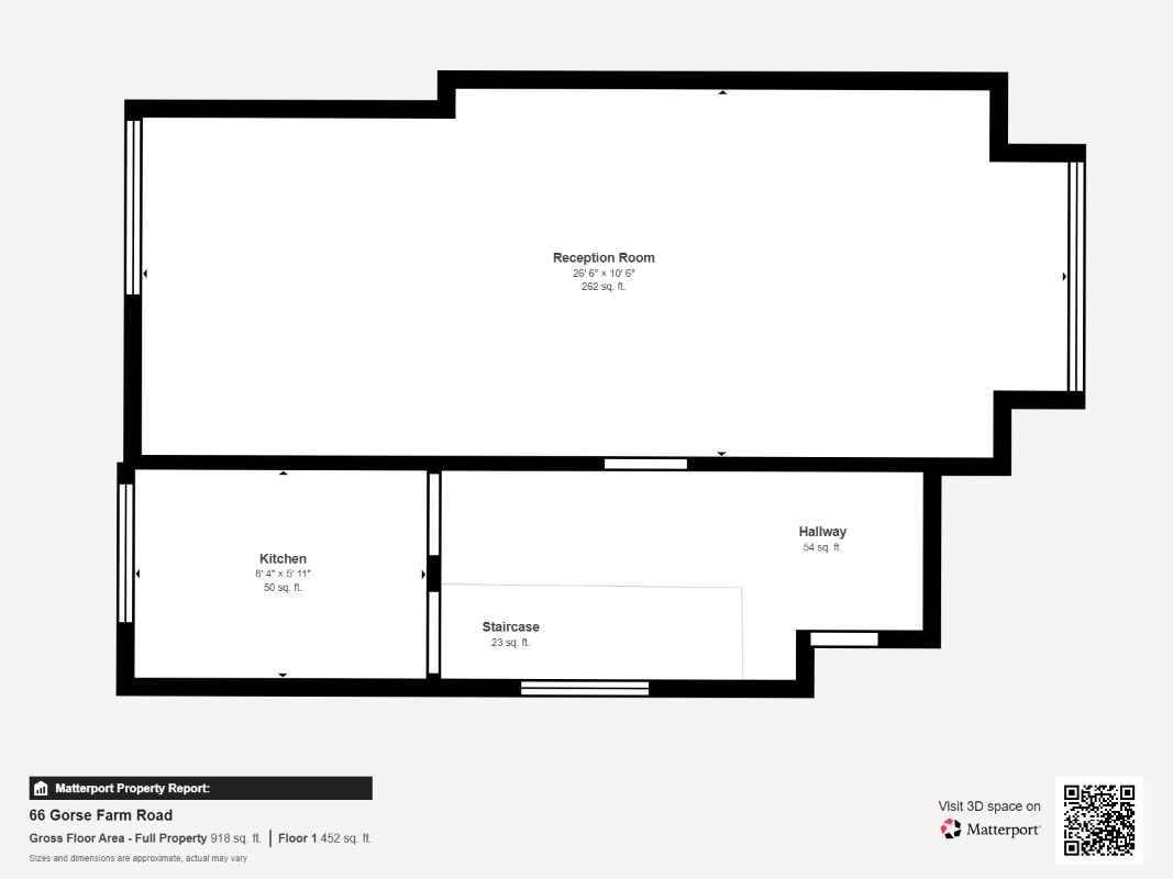
A semi-detached house with three bedrooms, located elevated from the road behind a foregarden. The ground floor includes a porch, hall, through reception room with dining area, kitchen, pantry, rear lobby, and side passageway/utilities area. The first floor comprises a landing, three bedrooms, and a bathroom/WC. The property features gardens and has double glazing but requires modernisation. It is a residential property with freehold tenure and is currently vacant. Council Tax Band: C.

Location
66 Gorse Farm Road, Great Barr, Birmingham, B43 5LR
More Information
Freehold
Gorse Farm Road
Planning Authority
Sandwell LPA
Property History
26 Mar 2026Available Lot Bond Wolfe£79,000

Interested in this lot?

GO TO THIS LOT

More Listings from this Auctioneer

Other listings nearby

DISCLAIMER

No Affiliation: PropertyAuctions.io is an independent service and is not affiliated with, endorsed by, or connected to any auction house, auctioneer, or property owner listed on this site.

Information Accuracy: All property information, including auction dates, descriptions, images, and pricing, is provided for informational purposes only and may contain errors or be outdated. We make no guarantee regarding accuracy or completeness.

Third-Party Content: Property images and descriptions are sourced from publicly available information. We do not claim ownership of content that may be copyrighted by auction houses or other parties.

Your Responsibility: You must verify all information directly with the relevant auction house before bidding or making any decisions. PropertyAuctions.io is not liable for any errors, omissions, or losses arising from use of this website.

Report Issues: If you spot an error or have copyright concerns, please report it here.

View Full Terms and Conditions