14, Clarkes Leaze, Chippenham, Yatton Keynell, SN14 7BT

14, Clarkes Leaze, Chippenham, Yatton Keynell, SN14 7BT

£75,000
Land
Sold
About this Property
02 April 2026
02 April 2026
Sold
£75,000
Traditional
Land
£79,000
Description

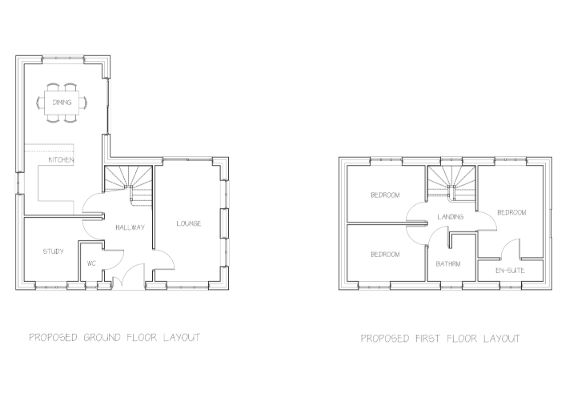
A freehold building plot is available in a popular village location, with planning consent granted for a detached house comprising three bedrooms and a gross internal area of approximately 94 m² (1,000 ft²). The approved ground floor layout includes an entrance hall, living room, kitchen/dining room, study, and cloakroom, while the first floor features a landing, principal bedroom with en-suite, two additional bedrooms, and a bathroom. The property will also include gardens and two parking spaces.

Location
Map location for 14, Clarkes Leaze, Chippenham, Yatton Keynell, SN14 7BT
More Information
Freehold
Planning Authority
Wiltshire LPA
Address History
28 Mar 2024Sold£290,000
Property Intelligence

Interested in this lot?

GO TO THIS LOT

More Listings from this Auctioneer

Other listings nearby

DISCLAIMER

No Affiliation: PropertyAuctions.io is an independent service and is not affiliated with, endorsed by, or connected to any auction house, auctioneer, or property owner listed on this site.

Information Accuracy: All property information, including auction dates, descriptions, images, and pricing, is provided for informational purposes only and may contain errors or be outdated. We make no guarantee regarding accuracy or completeness.

Third-Party Content: Property images and descriptions are sourced from publicly available information. We do not claim ownership of content that may be copyrighted by auction houses or other parties.

Your Responsibility: You must verify all information directly with the relevant auction house before bidding or making any decisions. PropertyAuctions.io is not liable for any errors, omissions, or losses arising from use of this website.

Report Issues: If you spot an error or have copyright concerns, please report it here.

View Full Terms and Conditions