Back to properties

Ashington, Northumberland, NE63 0HJ - Online Auctions

161 Sycamore Street, Ashington, Northumberland, NE63 0HJ

£10,000
Residential
About this Property
2025-11-10
10000
Traditional
Residential
Description

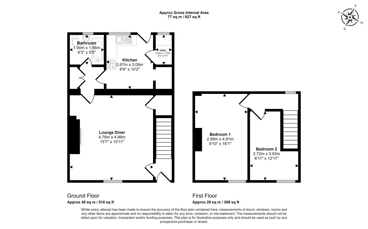
Situation: The property is located on Sycamore Street, in the heart of Ashington within reach of Newcastle and the city centre. There are a wealth of facilities and amenities within easy reach including public parks and areas. Road and rail network access is convenient, being positioned for access to the A1 road network and the surrounding towns and Cities, and the picturesque North East coast. Description: A wonderful opportunity to purchase this traditionally constructed mid terrace house, benefitting from well-proportioned and versatile accommodation throughout, and double glazing and central heating. The property is an ideal purchase for investors with scope to add value along with being in an area of high rental demand with a strong potential yield (based on advertised guide price) with rents of circa £600 pcm (£7200 per annum). Accommodation + Ground Floor Hall Sitting Room/Dining Room Breakfasting Kitchen Family Bathroom Inner Hall Utility Room First Floor Bedroom 1 Bedroom 2 Outside Garden Material Information Tenure: The property is freehold. All prospective bidders should satisfy themselves of terms of the tenure, ground rent and service charge if applicable, by inspecting the legal pack. Council Tax: The property falls within Northumberland Council – BAND C Possession: Vacant possession will be given upon completion. Viewing: Strictly by appointment with Auction House. Services: Prospective purchasers are advised to make their own enquiries of the relevant statutory authorities. NB: Services, Apparatus and Equipment have not been tested by Auction House and therefore cannot be verified as being in working order. The buyer is advised to obtain verification from their Solicitor/Surveyor. These particulars are believed to be correct but their accuracy is not guaranteed and they do not form any part of any contract. Information relating to Rating and Town and Country Planning matters has been obtained by verbal enquiry only. Prospective purchasers are advised to make their own enquiries of the appropriate Authority. Information relating to Phone & Broadband can be found by visiting Ofcom. All measurements, areas and distances are approximate only. Potential purchasers are advised to check them. C Non-refundable £3,600 inc VAT payable on the fall of the virtual gavel. Please see the legal pack for any disbursements listed that may become payable by the purchaser on completion.

Location
Ashington, Northumberland, NE63 0HJ - Online Auctions
More Information
Freehold
Sycamore Street
House
Planing Authority
Northumberland LPA
Sold Price History
17 Jan 2003Sold£25,500
17 Sep 2025Sold Lot McHugh & Co£33,000

Interested in this lot?

GO TO THIS LOT

More Listings from this Auctioneer

Other listings nearby