Lincoln Arms, 155 Percival Road, Enfield, EN1 1QT

Lincoln Arms, 155 Percival Road, Enfield, EN1 1QT

£1,850,000
Commercial
Sold
About this Property
23 April 2025
Sold
£1,850,000
Traditional
Commercial
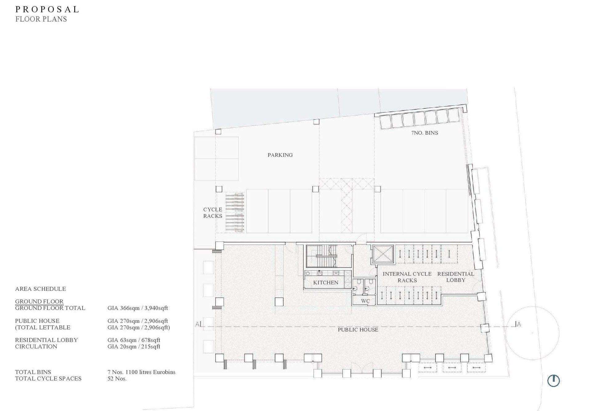
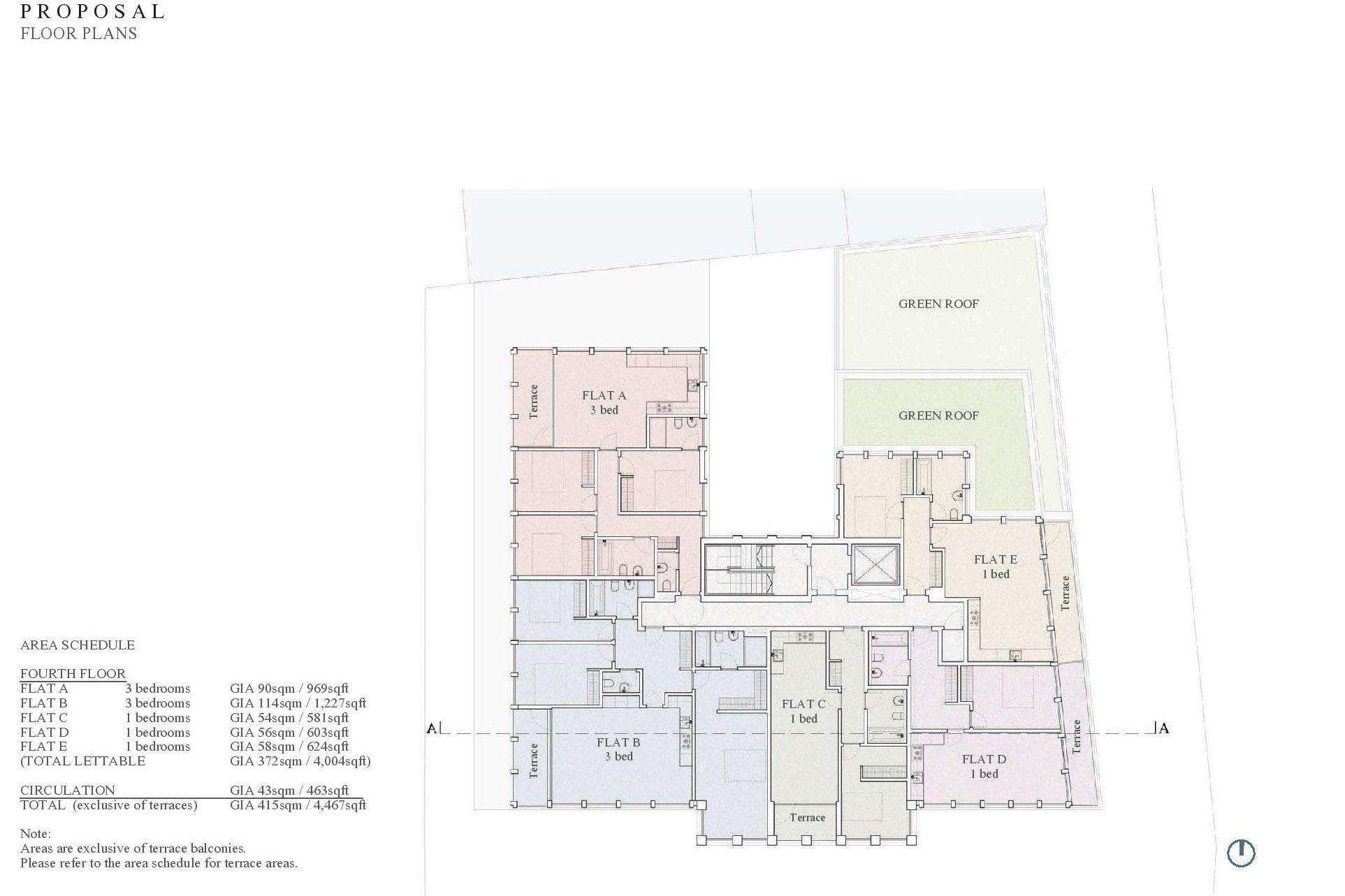
Description

A freehold development site with approved planning permission for the demolition of the existing building and the construction of a part 3, part 4, and part 5 storey building. The project includes a ground floor commercial premise and 23 residential flats on the upper floors. The residential units consist of 11 one-bedroom, 4 two-bedroom, and 8 three-bedroom flats, all designated as private housing with no requirement for affordable units. The site is adjacent to Bush Hill Park and features associated cycle and car parking, refuse storage, and external landscaping.

Location
More Information
Freehold
Planning Authority
Enfield LPA
Address History
12 Dec 2017Sold£1,174,999
23 Apr 2025Sold Lot Savills plc£1,850,000

Interested in this lot?

GO TO THIS LOT

More Listings from this Auctioneer

Other listings nearby

DISCLAIMER

No Affiliation: PropertyAuctions.io is an independent service and is not affiliated with, endorsed by, or connected to any auction house, auctioneer, or property owner listed on this site.

Information Accuracy: All property information, including auction dates, descriptions, images, and pricing, is provided for informational purposes only and may contain errors or be outdated. We make no guarantee regarding accuracy or completeness.

Third-Party Content: Property images and descriptions are sourced from publicly available information. We do not claim ownership of content that may be copyrighted by auction houses or other parties.

Your Responsibility: You must verify all information directly with the relevant auction house before bidding or making any decisions. PropertyAuctions.io is not liable for any errors, omissions, or losses arising from use of this website.

Report Issues: If you spot an error or have copyright concerns, please report it here.

View Full Terms and Conditions