7 Blands Cliff, Scarborough, North Yorkshire, YO11 1NR

7 Blands Cliff, Scarborough, North Yorkshire, YO11 1NR

£100,000
Residential
Sold
About this Property
24 November 2025
25 November 2025
Sold
£100,000
Traditional
Residential
£140,000
Description

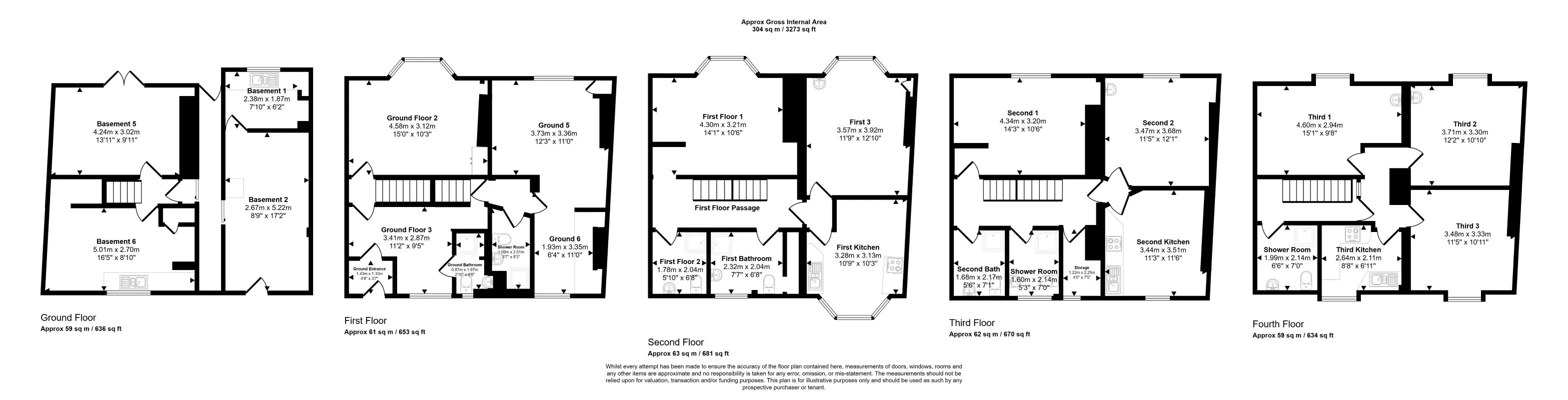
This is a five-storey period property offering over 3,200 sq ft (304 sq m) of accommodation. The property is arranged as a series of self-contained rooms and kitchen areas across the basement, ground, and upper floors. It has been partially stripped and requires full refurbishment. The upper floors feature a mix of bedrooms, bathrooms, and kitchens, many with large sash windows. There is rear access and potential for courtyard space, subject to reconfiguration. The property is freehold.

Location
Map location for 7 Blands Cliff, Scarborough, North Yorkshire, YO11 1NR
More Information
Freehold
Bland's Cliff
Planning Authority
Scarborough LPA
Property History
08 Dec 2017Sold£170,000
17 Jun 2024Sold£182,600
28 May 2025Withdrawn Lot Auction House Hull & East Yorkshire£235,000

Interested in this lot?

GO TO THIS LOT

More Listings from this Auctioneer

Other listings nearby

DISCLAIMER

No Affiliation: PropertyAuctions.io is an independent service and is not affiliated with, endorsed by, or connected to any auction house, auctioneer, or property owner listed on this site.

Information Accuracy: All property information, including auction dates, descriptions, images, and pricing, is provided for informational purposes only and may contain errors or be outdated. We make no guarantee regarding accuracy or completeness.

Third-Party Content: Property images and descriptions are sourced from publicly available information. We do not claim ownership of content that may be copyrighted by auction houses or other parties.

Your Responsibility: You must verify all information directly with the relevant auction house before bidding or making any decisions. PropertyAuctions.io is not liable for any errors, omissions, or losses arising from use of this website.

Report Issues: If you spot an error or have copyright concerns, please report it here.

View Full Terms and Conditions