184/186 Corporation Road, Newport, Gwent, NP19 0DQ

184/186 Corporation Road, Newport, Gwent, NP19 0DQ

£325,000
Mixed Use
Withdrawn
About this Property
16 December 2025
18 December 2025
Withdrawn
£325,000
Traditional
Mixed Use
Description

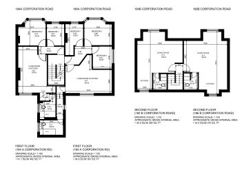
The property is a substantial freehold building comprising a ground floor retail unit and four flats. The ground floor retail unit includes a shop floor and storage area, leading to a rear yard. The flats consist of two units on the first floor and two units on the second floor, each with an entrance, lounge, kitchen, bedroom, and bathroom. The retail unit is currently not trading and is due for refurbishment. The total monthly income from the tenancies is £4,658. The property occupies a corner position on a busy junction. The tenure is advised as freehold.

Location
184/186 Corporation Road, Newport, Gwent, NP19 0DQ
More Information
Freehold
Corporation Road
Planning Authority
Newport
Property History
03 Feb 2026Available Lot Paul Fosh Auctions Limited£325,000

Interested in this lot?

GO TO THIS LOT
DISCLAIMER

No Affiliation: PropertyAuctions.io is an independent service and is not affiliated with, endorsed by, or connected to any auction house, auctioneer, or property owner listed on this site.

Information Accuracy: All property information, including auction dates, descriptions, images, and pricing, is provided for informational purposes only and may contain errors or be outdated. We make no guarantee regarding accuracy or completeness.

Third-Party Content: Property images and descriptions are sourced from publicly available information. We do not claim ownership of content that may be copyrighted by auction houses or other parties.

Your Responsibility: You must verify all information directly with the relevant auction house before bidding or making any decisions. PropertyAuctions.io is not liable for any errors, omissions, or losses arising from use of this website.

Report Issues: If you spot an error or have copyright concerns, please report it here.

View Full Terms and Conditions

More Listings from this Auctioneer

Other listings nearby