The Moorings, Seaville Drive, PEVENSEY, East Sussex, BN24 6AL

The Moorings, Seaville Drive, PEVENSEY, East Sussex, BN24 6AL

£1,075,000
Ground Rent
Unsold
About this Property
19 December 2023
Unsold
£1,075,000
Traditional
Ground Rent
Description

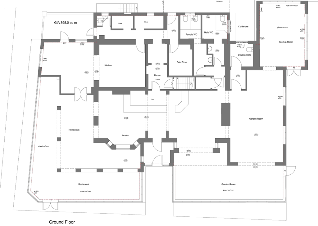
Substantial freehold linked detached building arranged over ground and first floors, fronting the beach with uninterrupted views. The total area of the property is approximately 6,314 sq ft, consisting of approximately 4,252 sq ft on the ground floor, 1,434 sq ft on the first floor, and 629 sq ft on the second floor. The property has planning permission to convert it into a single dwellinghouse and is offered with full vacant possession.

Location
Map location for The Moorings, Seaville Drive, PEVENSEY, East Sussex, BN24 6AL
More Information
Freehold
Planning Authority
Wealden LPA
Address History
06 Feb 2024Unsold Lot Barnard Marcus Auctions£995,000

Interested in this lot?

GO TO THIS LOT

More Listings from this Auctioneer

Other listings nearby

DISCLAIMER

No Affiliation: PropertyAuctions.io is an independent service and is not affiliated with, endorsed by, or connected to any auction house, auctioneer, or property owner listed on this site.

Information Accuracy: All property information, including auction dates, descriptions, images, and pricing, is provided for informational purposes only and may contain errors or be outdated. We make no guarantee regarding accuracy or completeness.

Third-Party Content: Property images and descriptions are sourced from publicly available information. We do not claim ownership of content that may be copyrighted by auction houses or other parties.

Your Responsibility: You must verify all information directly with the relevant auction house before bidding or making any decisions. PropertyAuctions.io is not liable for any errors, omissions, or losses arising from use of this website.

Report Issues: If you spot an error or have copyright concerns, please report it here.

View Full Terms and Conditions