Back to properties

Apartments 1-8, Portabrook Apartments, 245 Broomhall Street, Sheffield, South Yorkshire, S3 7SP

Apartments 1-8, Portabrook Apartments, 245 Broomhall Street, Sheffield, South Yorkshire, S3 7SP

£875,000
Residential
About this Property
2025-11-26
875000
Traditional
Residential
Description

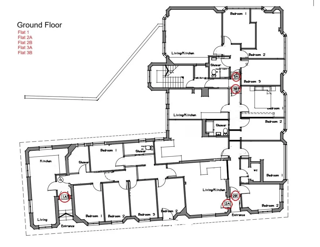
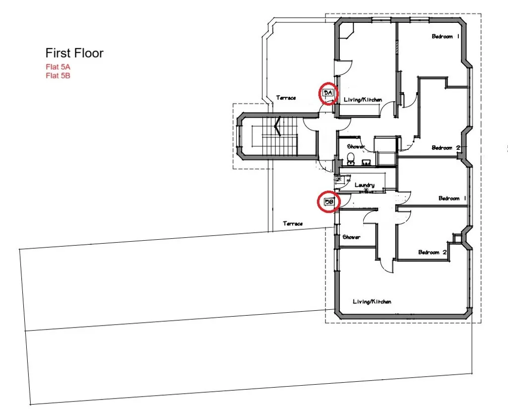
A Freehold Residential unbroken block of apartments well located just off the bottom of Ecclesall Road and within walking distance of the Sheffield Hallamshire, Children's & Teaching Hospitals, both University Of Sheffield & Sheffield Hallam Universities as well as the Train Station, City Centre and Ecclesall Road area. All apartments have undergone a recent renovation including a full and through scheme of refurbishment and modernisation all with updated kitchens, bathrooms, flooring and décor throughout and the block provides a range of different size apartments comprising X5 two bedroom apartments , X2 Three bedroom apartments & X1 Four bedroom apartments with balconies, which overall produces £112,860 per annum with fixed term AST'S until June 2026. The existing layout of the property does allow for conversion of the larger apartments into smaller ones to provide more separate units within the building. We have been advised that historic conversations with the planning department with regards to development potential by adding an additional second storey to the building and whilst no planning permission was applied for or granted we have been advised the planning department did provide favourable feedback in this regard.

Location
Apartments 1-8, Portabrook Apartments, 245 Broomhall Street, Sheffield, South Yorkshire, S3 7SP
More Information
Not Specified
Broomhall Street
Planing Authority
Sheffield LPA
Sold Price History
29 Oct 2025Withdrawn Lot Pugh & Company Limited£875,000
29 Oct 2025Withdrawn Lot Mark Jenkinson£875,000
26 Nov 2025Available Lot Pugh & Company Limited£875,000

Interested in this lot?

GO TO THIS LOT

More Listings from this Auctioneer