11, Hurricane Road, WEST MALLING, Kent, ME19 4TU

11, Hurricane Road, WEST MALLING, Kent, ME19 4TU

£235,000
Residential
Sold
About this Property
09 September 2025
Sold
£235,000
Traditional
Residential
£261,000
Description

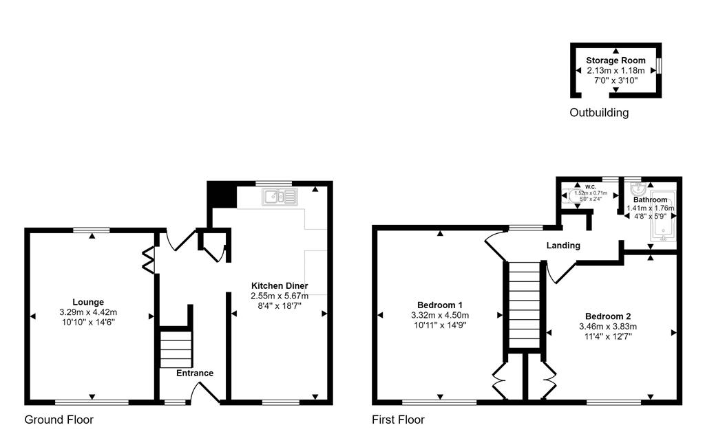
The property is a freehold semi-detached house arranged over two floors, requiring modernization. The ground floor includes a reception room, kitchen/diner, and entrance hallway, while the first floor has two bedrooms, a bathroom, and a separate WC. It has front and rear gardens and a gross internal area of approximately 81 sq m (869 sq ft). The property has an EPC rating of D and falls under Council Tax Band C.

Location
More Information
Freehold
Hurricane Road
Planning Authority
Tonbridge and Malling LPA
Property History
29 Jul 2025Unsold Lot Barnard Marcus Auctions£235,000

Interested in this lot?

GO TO THIS LOT

More Listings from this Auctioneer

Other listings nearby

DISCLAIMER

No Affiliation: PropertyAuctions.io is an independent service and is not affiliated with, endorsed by, or connected to any auction house, auctioneer, or property owner listed on this site.

Information Accuracy: All property information, including auction dates, descriptions, images, and pricing, is provided for informational purposes only and may contain errors or be outdated. We make no guarantee regarding accuracy or completeness.

Third-Party Content: Property images and descriptions are sourced from publicly available information. We do not claim ownership of content that may be copyrighted by auction houses or other parties.

Your Responsibility: You must verify all information directly with the relevant auction house before bidding or making any decisions. PropertyAuctions.io is not liable for any errors, omissions, or losses arising from use of this website.

Report Issues: If you spot an error or have copyright concerns, please report it here.

View Full Terms and Conditions