141 Longford Road, Longford, Coventry, CV6 6ED

141 Longford Road, Longford, Coventry, CV6 6ED

£35,000
Residential
Sold
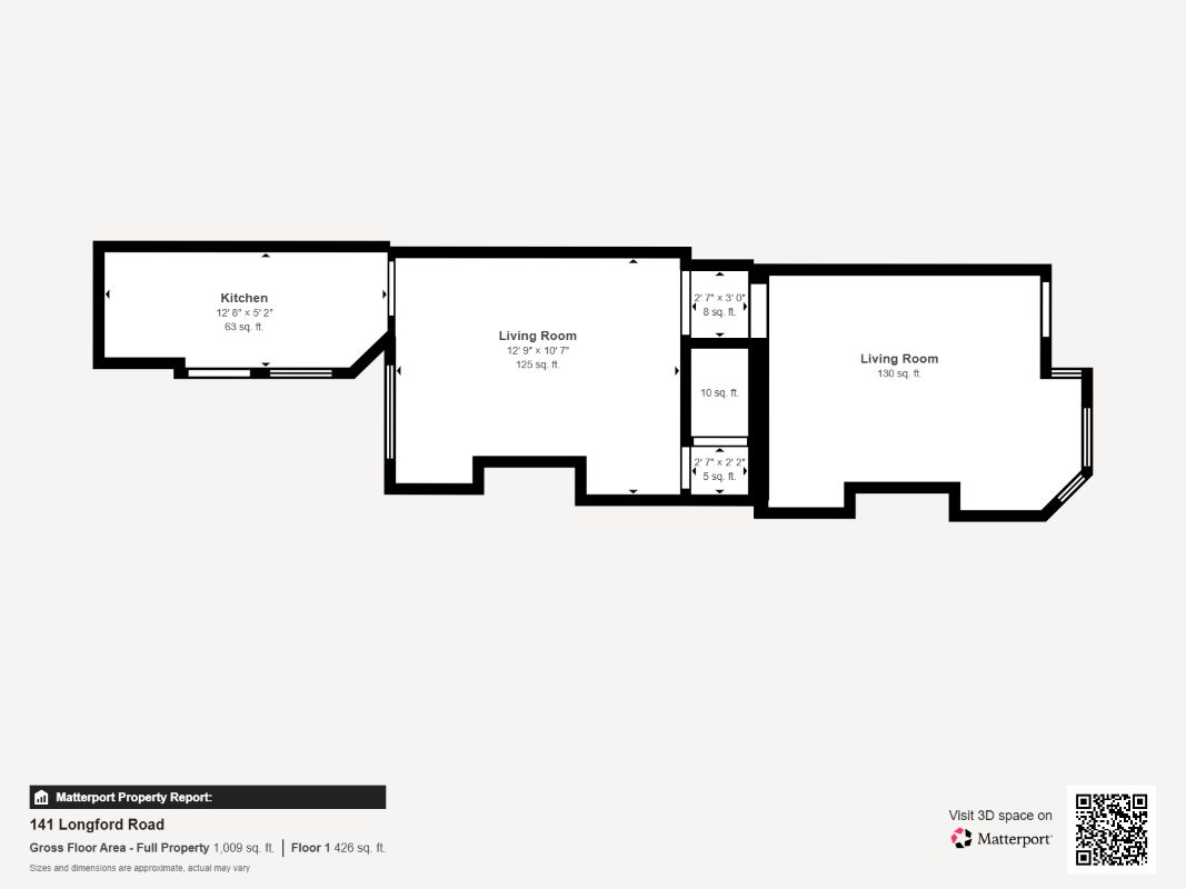
About this Property
05 February 2026
Sold
£35,000
Traditional
Residential
£132,000
Description

A Victorian end terraced house with three bedrooms located in Coventry. The ground floor includes two reception rooms, a kitchen, and a lean-to verandah. The first floor has a landing, two bedrooms, and a bathroom/WC, while the second floor contains one bedroom. The property features gardens and is equipped with a gas-fired central heating system and double glazing. It is a residential property with freehold tenure.

Location
141 Longford Road, Longford, Coventry, CV6 6ED
More Information
Freehold
Longford Road
Planning Authority
Coventry LPA
Property History
09 Mar 2026Available Lot Auction House London£35,000

Interested in this lot?

GO TO THIS LOT

Other listings nearby

DISCLAIMER

No Affiliation: PropertyAuctions.io is an independent service and is not affiliated with, endorsed by, or connected to any auction house, auctioneer, or property owner listed on this site.

Information Accuracy: All property information, including auction dates, descriptions, images, and pricing, is provided for informational purposes only and may contain errors or be outdated. We make no guarantee regarding accuracy or completeness.

Third-Party Content: Property images and descriptions are sourced from publicly available information. We do not claim ownership of content that may be copyrighted by auction houses or other parties.

Your Responsibility: You must verify all information directly with the relevant auction house before bidding or making any decisions. PropertyAuctions.io is not liable for any errors, omissions, or losses arising from use of this website.

Report Issues: If you spot an error or have copyright concerns, please report it here.

View Full Terms and Conditions