Brown&Co is a leading provider of agency, professional, and consultancy services in rural, commercial, and residential property, agriculture, and the environment. Established in 1993, the firm combines specialist expertise with local market knowledge to deliver exceptional results. With a commitment to strong client relationships, Brown&Co offers tailored solutions for both corporate and private clients across the UK and internationally.
Read more Read more68 & 68A Park Lane, Norwich, Norfolk, NR2 3EF
68 & 68A Park Lane, Norwich, Norfolk, NR2 3EF
About this Property
Description
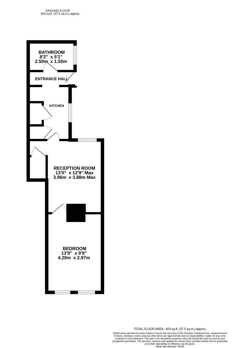
The property is a mid-terraced house currently divided into two flats. The ground floor flat includes a back entrance lobby, bathroom, kitchen, sitting room, and bedroom. The first floor flat has a main entrance hall, kitchen, bathroom, sitting room, and 2/3 bedrooms, one of which is located in the roof space. The property features a long garden at the rear and is being sold vacant, requiring improvements throughout. It is located in a residential area of Norwich.
Location

More Information
More Listings from this Auctioneer
Other listings nearby
No Affiliation: PropertyAuctions.io is an independent service and is not affiliated with, endorsed by, or connected to any auction house, auctioneer, or property owner listed on this site.
Information Accuracy: All property information, including auction dates, descriptions, images, and pricing, is provided for informational purposes only and may contain errors or be outdated. We make no guarantee regarding accuracy or completeness.
Third-Party Content: Property images and descriptions are sourced from publicly available information. We do not claim ownership of content that may be copyrighted by auction houses or other parties.
Your Responsibility: You must verify all information directly with the relevant auction house before bidding or making any decisions. PropertyAuctions.io is not liable for any errors, omissions, or losses arising from use of this website.
Report Issues: If you spot an error or have copyright concerns, please report it here.















