Back to properties

Paynes Park, Hitchin, Hertfordshire, SG5 1EJ - Online Auctions

16 Whitings Court Paynes Park, Hitchin, Hertfordshire, SG5 1EJ

£1,000
Residential
About this Property
2025-10-27
1000
Modern
Residential
Description

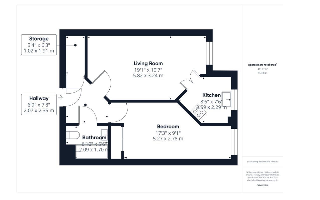
A superb one-bedroom ground floor retirement apartment situated in a sought-after development within a short walk to Hitchin town. The development benefits from a lovely communal dayroom and provides lifts and stairs to all floors. The apartment comprises of entrance hall, living area with double doors through to the fitted kitchen, spacious double bedroom with fitted wardrobes and three-piece bathroom suite. The development also has a resident house manager and care alarm system. Lease details: Leasehold information: 125 years from 1 September 2005 106 years remaining (as advised by the vendor) Service charge: £3000 per annum (as advised by the vendor) Material information: The information above has been provided by the vendor, agent and GOTO Group and may not be accurate. Please refer to the property’s Legal Pack. (You can download this once you have registered your interest against the property). This pack provides material information which will help you make an informed decision before proceeding. It may not yet include everything you need to know so please make sure you do your own due diligence as well Tenure LEASEHOLD Energy Efficiency Rating - Current 81 Energy Efficiency Rating - Potential 84 Comments Energy Performance Certificate(EPCs) An EPC is broadly like the labels provided with domestic appliances such as refrigerators and washing machines.Its purpose is to record how energy efficient a property is as a building. The certificate will provide a rating of the energy efficiency and carbon emissions of a building from A to G, where A is very efficient, and G is inefficient.The data required to allow the calculation of an EPC includes the age and construction of the building, its insulation and heating method.EPCs are produced using standard methods with standard assumptions about energy usage so that the energy efficiency of one building can easily be compared with another building of the same type.The Energy Performance of Buildings Directive (EPBD) requires that all buildings have an EPC when they are marketed for sale or for let, or when houses are newly built. EPCs are valid for 10 years, or until a newer EPC is prepared.During this period the EPC may be made available to buyers or new tenants.

Location
Paynes Park, Hitchin, Hertfordshire, SG5 1EJ - Online Auctions
More Information
Not Specified
Planing Authority
North Hertfordshire LPA

Interested in this lot?

GO TO THIS LOT

More Listings from this Auctioneer

Other listings nearby